Go Back   Rumski Forum > Studijska tehnika i instrumenti > Dizajn i konstrukcija studija

Dizajn i konstrukcija studija Diskusije i pomoc oko svih aspekata dizajna i konstrukcije kucnog/pro studija, gluve ili kontrolne sobe, tretman zidova i materijala...

Reply
 
Thread Tools Display Modes
Old 04-03-2009, 10:46 PM   #1
RokStudio
Member
 
RokStudio's Avatar
 
Join Date: Oct 2006
Location: Beograd
Posts: 291
Default Rok Studiov studio [Gde nabaviti?]

Poku?avam par dana, bez mnogo uspeha, da pronađem za nabavku u Srbiji neke stvari, pa ako imate informacije bio bih zahvalan:

1. Gumeni podmetači za ispod greda u konstrukciji plivajućeg poda ("neoprene pads" - sa gumenim proizvodima koje sam na?ao kod nas, nemam nikakve informacije o upotrebljivosti za sprečavanje prenosa vibracija, preporučenom opterećenju i trajnosti)

2. Kuke za viseći plafon bez dodirivanja metala ("acoustic hangers" - mo?da obične mogu da se pretvore u takve uz malo majstorisanja?)

3. Masa za zaptivanje spojeva i pukotina ("acoustical caulk" - najbli?e ovome ?to sam na?ao su Sikaflex tube, da li neko ima iskustva s njima?)

Sve ove stvari se mogu naručiti iz inostranstva i to će biti, naravno, opcija u slučaju da ne uspem da nađem odgovarajuće zamene, tako da bi bilo od pomoći ako neko zna za neku firmu u odakle ?alju ovakve stvari bez većih komplikacija u Srbiju.

P.S. Ovo su, za sada, nedostajući elementi u projektu "sobe u sobi" za studio koji planiram u prostoru koju sam iznajmio u zgradi BIGZ-a. Ako vas zanimaju detalji ili biste bili voljni da mi pomognete kritikama i sugestijama, recite, pa da objasnim detaljnije.
RokStudio is offline   Reply With Quote
Old 05-03-2009, 10:38 AM   #2
grada27
Senior Member
 
Join Date: Jun 2007
Location: Beograd,VRACAR
Posts: 526
Default Re: Gde nabaviti?

Mene zanima,samo ne znam koliko se to sve isplati raditi (soba u sobi) u iznajmljenom prostoru i zasto je to neophodno raditi,koliko znam tamo ne smetas nikom sto se tice buke.To sto govoris za pod, imas li nekog ispod tebe i kome ce smetati vibracije ili sve to radis da tebi ne smeta buka koja je spolja?

pozz!

Grada
grada27 is offline   Reply With Quote
Old 05-03-2009, 11:19 AM   #3
RokStudio
Member
 
RokStudio's Avatar
 
Join Date: Oct 2006
Location: Beograd
Posts: 291
Default Re: Gde nabaviti?

BIGZ je, kao što mnogi znaju, masivna predratna zgrada u Beogradu kod mostarske petlje koja je napravljena da u njoj bude državna štamparija, a sada je prodata i vlasnik izdaje te stare hale i kancelarije. Mnogi bendovi zakupljuju tamo prostor za svoje probe, a ima i nekoliko studija, mada ne znam ni za jedan predviđen za snimanje živih instrumenata. Svi prostori koje sam video tamo su netretirani ili poptuno neadektvatno traterani (tipa: zavesa na prozorima, zalepljen azmafon za zid. Svaka bučnija aktivnost čuje se prilično glasno po hodnicima, napolju (što je problem komšijama na Senjaku koji se bune) i, kako kažu, onima ispod i iznad. Ja sam imao sreću da nađem prostor u kome se jedna soba nalazi na samom uglu zgrade; jedan zid je bez prozora a drugi sa. Treći zid je zajednički sa požarnim hodnikom. a četvrti sa ulaznom sobom - dakle nemam direktnih komšija. Međutim, ne samo da se prilično čuje (probao sam s dobošem), već postoji i ubeđenje ljudi koji rade u izdavanju prostora da se to MORA čuti i da zato treba da koristim prostor samo od 17h (kad nemuzički biznisi prestaju da rade pa možemo da lupamo mi ostali) do 22h (posle čega bi komšije u susednim zgradama počeli da se bune). Oni to, naravno, ispravno govore iz iskustva jer niko se nije potrudio da adektvatno izoluje svoj prostor. Naravno da će bubanj da probija i na donji sprat i u hodnik, bez obzira što su to debeli betonski zidovi. Takođe, kada drugi sviraju zvuk dolazi i do te sobe, a tu je i konstanto brujanje saobraćaja sa petlje, tako da bez izolacije ne bi bilo tišine potrebne za bilo kakav ozbiljniji rad.

Dakle, ja sam rešio da uradim šta mogu po tom pitanju kako bih napravio prostor u kome ne moram da mislim na problem buke i u kome, nadam se, može da se svira 24h. Moguće je da je bilo lakše naći prostor u podrumu neke zgrade sa manje potrebe za izolacijom, ali ovo mi odgovara i po lokaciji i po drugim kriterijumima i mislim da je izvodljivo, a i imam veliku želju da uradim takav projekat, nešto što nije samo da "drži vodu". Prostorija je veličine 6.35 * 5.40 (visina 3.60) uz prijemnu sobu 6.00 * 3.28 (njom ću se baviti kasnije).

Last edited by RokStudio; 05-03-2009 at 11:21 AM.
RokStudio is offline   Reply With Quote
Old 05-03-2009, 04:42 PM   #4
dawid
Senior Member
 
dawid's Avatar
 
Join Date: May 2006
Location: backi petrovac
Posts: 447
Default Re: Gde nabaviti?

Quote:
Originally Posted by RokStudio View Post
1. Gumeni podmetači za ispod greda u konstrukciji plivajućeg poda ("neoprene pads" - sa gumenim proizvodima koje sam našao kod nas, nemam nikakve informacije o upotrebljivosti za sprečavanje prenosa vibracija, preporučenom opterećenju i trajnosti)
Prdavnica Energynet , Novi Sad, Rumenacka 49, a materijal koji mislim da bi ti odradio stvar (i ja sam ga koristio u iste svrhe) zove se Armafleks AC. 021/510-699. Ima ga u tablama, u trakama, a imas cak i samolepljivi. Nazovi pa pitaj jer se ja cene stvarno vise ne secam.
To ti je nesto kao ovo na slici.
Attached Images
 
dawid is offline   Reply With Quote
Old 05-03-2009, 11:43 PM   #5
RokStudio
Member
 
RokStudio's Avatar
 
Join Date: Oct 2006
Location: Beograd
Posts: 291
Default Re: Gde nabaviti?

HVala na savetu, ja sam uspeo da nađem neku malo tvrđu gumu koju pravi Vulkan doo iz Ni?a - imaju veleprodaju u Bgd, treba samo da smislim kako da preko neke firme nabavim. Deluje mi kao da je to to ?to mi treba jer tu gumu i reklamiraju za sprečavanje vibracija ispod ma?ina, gumene podove i sl. Sada ostaje problem na ?ta okačiti grede... takođe, ba? sad je morala da bude nesta?ica gu?će (80) kamene vune...
RokStudio is offline   Reply With Quote
Old 06-03-2009, 12:14 AM   #6
grada27
Senior Member
 
Join Date: Jun 2007
Location: Beograd,VRACAR
Posts: 526
Default Re: Gde nabaviti?

Posto radim nesto slicno,dobro razmisli da li ti se isplati finansiski tako nesto, jasno mi je za pod i plafon sta nameravas,a sta mislis sa zidovima?Evo da te podsetim samo masa sprecava zvuk jos bolje masa(blok)+ kamena vuna sto teza(apsorber), pa ponovo masa,ali takva akcija stvarno i kosta dosta jer se rade dva zida, zato jos jednom dobro razmisli,stavi sve na papir pa odluci.Inace mislim da ces zidove moci u tom slucaju(da li ce dozvoliti,zidanje) samo da tretiras sa nekim rostiljem.U njega stavi sto tezu kamenu vunu pa ga zatvori sa obe strane, sa sto vise sloja debljih gips ploca ili OSB ploca u svakom slucaju puno uspeha u poslu.Jos nesto zanima me radis li studio ili prostor za vezbu?Ne zameri mi na moje predloge, kako da uradis celu stvar,sigurno si vec sam odlucio o svemu.

Veliki Pozz!
Grada
grada27 is offline   Reply With Quote
Old 06-03-2009, 05:17 AM   #7
RokStudio
Member
 
RokStudio's Avatar
 
Join Date: Oct 2006
Location: Beograd
Posts: 291
Default Re: Gde nabaviti?

Plan je da se uradi komplet soba od drvene konstrukcije unutar postojeće prostorije:

- Pod će biti od greda 10*12 na 60 cm razmaka sa 3 sloja na njima (drvo, gips, drvo). Grede le?e na gumenim kockicama a prostor do poda između greda je ispunjen kamenom vunom.

- Zidovi su sa po 2 sloja gipsanih ploča sa obe strane, na uglovima soba su pričvrćeni za vertikalne grede ?irine 15 cm, a unutar zida su grede 5 * 10 cm naizmenično pričvr?ćene za ploče sa jedne i druge strane na 60 cm razmaka, dok je ceo prostor ispunjen kamenom vunom. Ovako se dobija odvajanje spoljnjeg i unutra?njeg dela zida.

- Plafon su grede postavljene na zidnu konstrukciju ispod kojih su za?rafljene jedna iverica i jedna gipsana ploča. Grede imaju dodatnu potporu od akustičkih kuka kojima su zakačene za plafon originalne sobe. Iznad ploča je kamena vuna, s gornje strane nema ploča (ne mogu ni da se ?rafe odozdo a i nemaju mnogo efekta ako su ploče s obe strane za?rafljene na grede)

Svi spojevi ploča se dihtuju nepropusnom masom. Ploče su debljine 15-18 mm. Koristim ivericu umesto osb jer je znatno jeftinija a ima slično dejstvo, a uop?te koristim i drvo a ne samo gips jer je bolje me?ati materijale zbog različitih osobina na različitim frekvencijama.

Nere?ena pitanja:

- Ventilacija: ne znam da li da idem na poor man's re?enje da samo sprovedem 2 ?iroke, dugačke fleksibilne cevi koje bi od prozora vijugale na plafonu i bile oblo?ene i tako ote?ale put buci i zakačio ih na sobu negde gore i dole i obezbedio strujanje vazduha... ili da idem na pravu ventilaciju.

- Nisam sasvim siguran kako tačno da vr?im spojeve na ivicama sobe da bude ?to manje prenosa npr sa spoljneg dela zida na pod i plafon unutra?nje sobe. Takođe ne znam najbolji način pričvr?ćivanja greda jedne za druge. Moraću jo? da istra?ujem.

- Vrata: moram da vidim gde se kod nas mogu nabaviti najzgodnija vrata koja neće da upropaste celu stvar

Ima tu jo? gomila sitnica - struja, kablovi... ali to su formalnosti i na tome jo? radim.

Orijentaciono sam sračunao da će me ova sama soba ko?tati oko 5000 evra, posle čega sledi, naravno, uređenje njene unutra?njosti akustičkom obradom, ?to će biti poseban projekat.

Ako neko vidi rupu u ovom planu, recite mi.... jo? nije kasno
RokStudio is offline   Reply With Quote
Old 06-03-2009, 04:38 PM   #8
spidermusic
Senior Member
 
spidermusic's Avatar
 
Join Date: Dec 2006
Location: Belgrade
Posts: 667
Default Re: Gde nabaviti?

Ventilaciju je, po meni, najbolje resiti klima uredjajem koji izmenjuje vazduh. To bi ujedno bila i najjeftinija investicija, jer svi ostali sistemi sa cevima prenose buku sa kojom je tesko izboriti se na jeftin nacin. Ujedno bi dobio i adekvatno grejanje i hladjenje studija. Narocito je hladjenje, odnosno odvlazivanje, bitno u dobro zvucno i toplotno izolovanim prostorijama.

Iako bi klima zavrsila posao, ja se ne bih odrekao prozora, ne samo zbog ventilacije, vec i zbog prirodnog svetla. Ne treba ni pominjati koliko je prirodno svetlo bitno u radnim prostorijama. Mislim da bi kvalitetna Tyssen-ova PVC stolarija sa dvostrukim dihtovanjem, postavljena u konstrukciju nove sobe koju gradis u postojecoj sobi, bila dovoljna da izoluje buku, kako onu koja dolazi iznutra, tako i onu koja dolazi spolja. Za vrata, takodje mozes koristiti Tyssen-ova PVC balkonska vrata. (Vazno je da budu balkonska, jer imaju prag i bolju izolativnost.)

Spajanje greda se vrsi posebnom metodom zljebljenja koju poznaje svaki tesar ili stolar. Bice mi zadovoljstvo da ti tu metodu demonstriram. Mogao bih ti dati i izvesne sugestije i savete oko kablaze, jer sam, manje-vise, slicne probleme imao u sopstvenom studiju.

Veliki pozdrav i srecno.
spidermusic is offline   Reply With Quote
Old 22-03-2009, 05:55 PM   #9
RokStudio
Member
 
RokStudio's Avatar
 
Join Date: Oct 2006
Location: Beograd
Posts: 291
Default Re: Gde nabaviti?

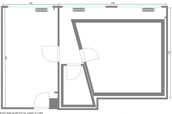
Evo par slika... sema studija i 2 faze u konstrukciji vocal booth-a
Attached Images
   
RokStudio is offline   Reply With Quote
Old 23-03-2009, 01:04 AM   #10
quake
Banned
 
Join Date: Oct 2008
Posts: 529
Default Re: Gde nabaviti?

Sta ce na ovoj shemi studija da bude control room?Ne vidim nigde simetriju
quake is offline   Reply With Quote
Reply


Currently Active Users Viewing This Thread: 1 (0 members and 1 guests)
 

Posting Rules
You may not post new threads
You may not post replies
You may not post attachments
You may not edit your posts

BB code is On
Smilies are On
[IMG] code is On
HTML code is On

Forum Jump

Similar Threads
Thread Thread Starter Forum Replies Last Post
Fl Studio equlibrium Audio Software 6 12-03-2009 05:48 PM
FL Studio 9 euphoric Audio Software 6 27-01-2009 02:30 PM
FL Studio 4 milosjeftic Audio Software 4 08-04-2005 10:34 AM


All times are GMT +1. The time now is 04:25 AM.


Powered by vBulletin® Version 3.8.12 by vBS
Copyright ©2000 - 2026, vBulletin Solutions Inc.
vB.Sponsors