Go Back   Rumski Forum > Studijska tehnika i instrumenti > Dizajn i konstrukcija studija

Dizajn i konstrukcija studija Diskusije i pomoc oko svih aspekata dizajna i konstrukcije kucnog/pro studija, gluve ili kontrolne sobe, tretman zidova i materijala...

Reply
 
Thread Tools Display Modes
Old 29-08-2006, 11:29 PM   #1
alavuk
Pro Member
 
alavuk's Avatar
 
Join Date: Aug 2006
Location: Skopje
Posts: 4,664
Default potkrovlje ...

koliko je potkrovlje dobro za kucni studio i eventualno neku ozbiljniju produkciju (pored "standardne" produkcije dodao bi i snimanje vokala) ???? ja zivim u potkrovlju (nova galenika) ... pa sad kad bi se nesto ozbiljno update-ov'o morao bi da se nastelujem sto bolje ... cit'o sam sinoc do jutarnjih casova dileme oko akustike kako da se namesti i slusanje i sl. nesto sam kombinovao sta i kako bi se moglo namestiti ali kapiram da bi bolji savet bio kad bi vam posl'o sliku ili barem 3d model sobe da zajednicki ovako preko foruma me posavetujete sta i kako :]

al' ajd' ovako uopsteno ako je moguce ...
alavuk is offline   Reply With Quote
Old 29-08-2006, 11:36 PM   #2
boggy
Moderator
 
boggy's Avatar
 
Join Date: Sep 2005
Location: Beograd
Posts: 6,200
Default Re: potkrovlje ...

Quote:
Originally Posted by alavukonja
koliko je potkrovlje dobro za kucni studio
Pa sad... ako ne prokisnjava, onda je ok... valjda...
Quote:
Originally Posted by alavukonja
i eventualno neku ozbiljniju produkciju (pored "standardne" produkcije dodao bi i snimanje vokala) ???? ja zivim u potkrovlju (nova galenika) ... pa sad kad bi se nesto ozbiljno update-ov'o morao bi da se nastelujem sto bolje ... cit'o sam sinoc do jutarnjih casova dileme oko akustike kako da se namesti i slusanje i sl. nesto sam kombinovao sta i kako bi se moglo namestiti ali kapiram da bi bolji savet bio kad bi vam posl'o sliku ili barem 3d model sobe da zajednicki ovako preko foruma me posavetujete sta i kako :]

al' ajd' ovako uopsteno ako je moguce ...
lakse je uz sliku... uopsteno imas svuda po ovoj sekciji... kreni da meris i crtas...

pozdrav

bogi
__________________
@Facebook
@Instagram
Email: boggy@myroom-acoustics.com

--"We can never see past the choices we don't understand." (Oracle, The Matrix Reloaded)
boggy is offline   Reply With Quote
Old 30-08-2006, 12:46 AM   #3
SumAnuT
Pro Member
 
SumAnuT's Avatar
 
Join Date: Oct 2003
Location: ITB
Posts: 1,951
Default Re: potkrovlje ...

Ne bih mogao egzaktno da dokazem ali iz onoga sto znam zakljucio sam da je potkrovlje ubedljivo najbolje resenje za studio

Ne govorim iz licnog iskustva niti sam ikad bio u nekom studiju u potkrovlju ali sami polozaj zidova i krova u potkrovljima mi se cini savrsen.
__________________
Ej, Ljubice, Ljubice,
grudi ti, Ljubice,
kao haubice!
SumAnuT is offline   Reply With Quote
Old 30-08-2006, 01:19 AM   #4
Oggy
Moderator
 
Oggy's Avatar
 
Join Date: Nov 2004
Posts: 4,115
Default Re: potkrovlje ...

Pogotovo kad leti upece sunce.... Onda je potkrovlje najbolje resenje...
__________________
"Ne znam sta se desava, imam strah od pletenja..."

http://www.sunflower-fest.com/



Oggy is offline   Reply With Quote
Old 30-08-2006, 01:21 AM   #5
SumAnuT
Pro Member
 
SumAnuT's Avatar
 
Join Date: Oct 2003
Location: ITB
Posts: 1,951
Default Re: potkrovlje ...

Mislio sam na akustiku.
__________________
Ej, Ljubice, Ljubice,
grudi ti, Ljubice,
kao haubice!
SumAnuT is offline   Reply With Quote
Old 15-12-2006, 05:55 PM   #6
alavuk
Pro Member
 
alavuk's Avatar
 
Join Date: Aug 2006
Location: Skopje
Posts: 4,664
Default Re: potkrovlje ...

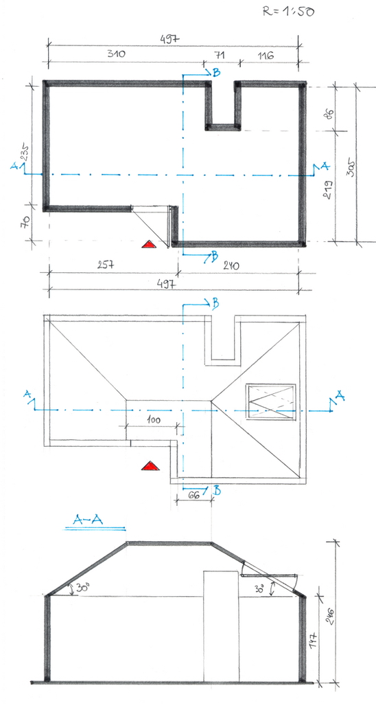
boggy evo slika + objasnjenje na pm :]]]
__________________
menjam nove fosile za ritam masinu ...





xxx says : "Preko dana zemljoradnik a nocu disko zvezda"
alavuk is offline   Reply With Quote
Old 15-12-2006, 08:19 PM   #7
boggy
Moderator
 
boggy's Avatar
 
Join Date: Sep 2005
Location: Beograd
Posts: 6,200
Default Re: potkrovlje ...

Quote:
Originally Posted by alavuk
boggy evo slika + objasnjenje na pm :]]]
Odgovorio...

pozdrav

bogi
__________________
@Facebook
@Instagram
Email: boggy@myroom-acoustics.com

--"We can never see past the choices we don't understand." (Oracle, The Matrix Reloaded)
boggy is offline   Reply With Quote
Old 15-12-2006, 09:35 PM   #8
alavuk
Pro Member
 
alavuk's Avatar
 
Join Date: Aug 2006
Location: Skopje
Posts: 4,664
Default Re: potkrovlje ...

da ne izgleda da privatizujem ovaj topic , a i svaka "glava" je dobro dosla


http://fileho.com/download/a4d85665411/soba.rar.html

objasnjenje kako mi sta stoji

gledanje u pravcu sata :]] (nadam se da znate kako se vrata obelezavaju u tehnickom crtezu :]

sa leve strane kako se udje trenutno mi je sto za komp klavijatura nakacena na sto takodje , pa zid do kompa , kuciste , pojacalo , 505 , zvucnik sve to stoji na jednoj dasci koja moze da se rezbari i sl. i da se skloni koja se prostire celom duzinom zida, kod zida preko puta vrata mi je mala komodica za stvari stolcic i vinili , u "cosku" onom zavucenom delu je plakar , (izbocina pre toga je predvidjena za pec) , prozor (se nalazi na onoj tacki A (s'desna na levo gledanje) u toj ravni je i luster vise ka vratima , krevet ... (uz zid gde je krevet pa do prozora je radijator) ... treba jos nesto ?

malo ovako konfuzno zvuci ali kad se gleda slika i ovaj txt bice jasnije , naravno sobu znam napamet pa ono napamet i pisem :]]]]] videcu da fotografisem neke delove da se lakse orijentisete
__________________
menjam nove fosile za ritam masinu ...





xxx says : "Preko dana zemljoradnik a nocu disko zvezda"
alavuk is offline   Reply With Quote
Old 15-12-2006, 09:55 PM   #9
boggy
Moderator
 
boggy's Avatar
 
Join Date: Sep 2005
Location: Beograd
Posts: 6,200
Default Re: potkrovlje ...

Evo alavukovih slika umanjenih
prva:
Attached Images
 
__________________
@Facebook
@Instagram
Email: boggy@myroom-acoustics.com

--"We can never see past the choices we don't understand." (Oracle, The Matrix Reloaded)
boggy is offline   Reply With Quote
Old 15-12-2006, 09:57 PM   #10
boggy
Moderator
 
boggy's Avatar
 
Join Date: Sep 2005
Location: Beograd
Posts: 6,200
Default Re: potkrovlje ...

druga....

pozdrav

bogi
Attached Images
 
__________________
@Facebook
@Instagram
Email: boggy@myroom-acoustics.com

--"We can never see past the choices we don't understand." (Oracle, The Matrix Reloaded)
boggy is offline   Reply With Quote
Reply


Currently Active Users Viewing This Thread: 1 (0 members and 1 guests)
 

Posting Rules
You may not post new threads
You may not post replies
You may not post attachments
You may not edit your posts

BB code is On
Smilies are On
[IMG] code is On
HTML code is On

Forum Jump


All times are GMT +1. The time now is 11:43 AM.


Powered by vBulletin® Version 3.8.12 by vBS
Copyright ©2000 - 2026, vBulletin Solutions Inc.
vB.Sponsors