Go Back   Rumski Forum > Studijska tehnika i instrumenti > Dizajn i konstrukcija studija

Dizajn i konstrukcija studija Diskusije i pomoc oko svih aspekata dizajna i konstrukcije kucnog/pro studija, gluve ili kontrolne sobe, tretman zidova i materijala...

Reply
 
Thread Tools Display Modes
Old 18-10-2010, 11:06 PM   #1
vly
Member
 
vly's Avatar
 
Join Date: Apr 2006
Location: Beograd
Posts: 342
Default Vrata gluve sobe

Pozdrav svima

Pocinjem adaptaciju prostora za svoj novi studio. Uskoro cu okaciti i neke fotke samog procesa,da podelim sa vama...

Takodje,okacicu i fotke DEmontaze dosadasnjeg studija po fazama,mislim da i to nije nezanimljivo...sve se isto vidi samo obrnuto Nesto kao pornic unazad ))

Posto mi nije prvi put, trenutno nemam mnogo pitanja sem jednog u vezi elementa koji bih prvi put mozda resio na taj nacin.

Sta mislite o upotrebi pvc vrata za vrata od gluve sobe?

Da ili ne?

Po oglasima se tip vrata koji se uklapa bar izgledom u ovo o cemu ja razmisljam zove "balkonska pvc vrata".Znaci najveca povrsina vrata je staklena,sto mi je ok zbog vizuelne komunikacije sa onim ko je unutra...

Ako je moguce uspesno ih iskoristiti za to,na sta da obratim paznju kod narucivanja istih?

Pretpostavljam da su bitni:

- debljina stakla - ispod koje debljine da ne idem?

- duplo staklo je standard kod njih ali vidim da ima nekih i sa tri stakla?

- sta je bitno kod samog pvc-a u smislu onih komora o kojima pricaju...znam da one imaju veze sa toplotnom ali da li se uopste odnose i na zvucnu izolaciju?

- sta je jos mozda bitno a da nisam naveo ( vakum staklo? ima i nekih punjenja argonom? itd )

U gluvu sobu se ulazi iz rezije direktno, u prethodnom prostoru je ulaz bio iz druge prostorije tako da mi je problem "curenja" zvuka kroz vrata bio mnogo manje kritican nego ovde.

U jednom ozbiljnom BG studiju sam video upravo taj tip vrata i to tamo funkcionise potpuno ok a vrata su bas blizu monitoringa,pitacu i njih naravno ali mi je svaki savet iskusnih profesionalaca dragocen!

Hvala!
vly is offline   Reply With Quote
Old 19-10-2010, 11:13 AM   #2
vly
Member
 
vly's Avatar
 
Join Date: Apr 2006
Location: Beograd
Posts: 342
Default Re: Vrata gluve sobe

Niko? Nista?
vly is offline   Reply With Quote
Old 19-10-2010, 10:06 PM   #3
analog
Senior Member
 
analog's Avatar
 
Join Date: Dec 2006
Location: Beograd
Posts: 438
Default Re: Vrata gluve sobe

Pa pro?ao je tek jedan dan, zar si toliko nestrpljiv?

Ja sam čuo od raznih ljudi da PVC vrata znaju vrlo brzo da se deformi?u i da ih treba izbegavati. Pogotovo ako stavlja? te?ka stakla na njih.
analog is offline   Reply With Quote
Old 19-10-2010, 11:08 PM   #4
NLP
Moderator
 
NLP's Avatar
 
Join Date: May 2006
Location: Drugdje
Posts: 2,426
Default Re: Vrata gluve sobe

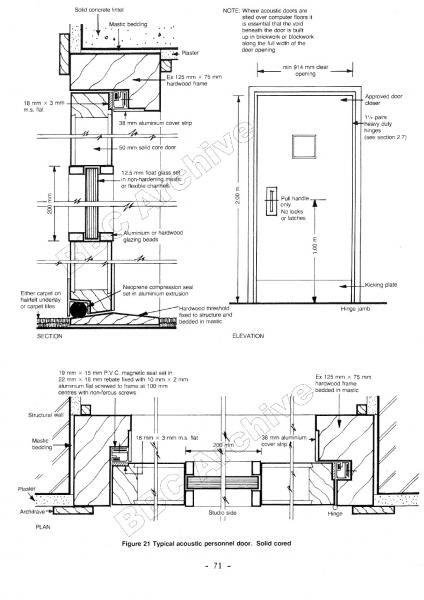
Ne znam koja komercijalna PVC bi bila zadovlajujuča ali inače puna drvena masivna vrata nisu dovoljno da nude ozbiljnu zvučnu separaciju između kontrolne i snimačeg djela. Dupla masivna drvena več nude nešto ozbiljnije ali dakako još nije to to.
Ovdje imaš jedan princip BBC-jevih vrata za radijske studie:

http://downloads.bbc.co.uk/rd/pubs/reports/1994-14.pdf
http://downloads.bbc.co.uk/rd/pubs/reports/1994-15.pdf
više oko bilo čega http://downloads.bbc.co.uk/rd/pubs/a...icpractice.pdf

Staklo - bolje vakuum.
Bolje duplo deblje staklo nego 3 slojno!!!... ako baš mora da bude 3 slojno onda ne sme da budu stakla jednake debljine i jednako uddaljeni jedno od drugog (rezonancije...)!

PVC vrata - moraju biti dosta ojačana sa čeličnim okvirom i još čim i moraju da budu veoma masivna.

Evo na brzaka.
Attached Images
 
__________________
We are Dyslexia of Borg. Fusistance is retile. Your ass will be laminated.

Nenad Patkovic
https://www.facebook.com/NedPat34
https://www.facebook.com/aeracoustics
www.aer-acoustics.com
http://www.distopiksound.com/
https://mixanalog.com

Last edited by NLP; 19-10-2010 at 11:10 PM.
NLP is offline   Reply With Quote
Old 20-10-2010, 02:45 PM   #5
DzoniPFC
Pro Member
 
Join Date: Oct 2008
Location: Belgrade
Posts: 806
Default Re: Vrata gluve sobe

Ja mislim da bi rucno napravljena drvena dvoslojna vrata popunjena kamenom vunom bilo najbolje resenje ?
DzoniPFC is offline   Reply With Quote
Old 20-10-2010, 03:09 PM   #6
boggy
Moderator
 
boggy's Avatar
 
Join Date: Sep 2005
Location: Beograd
Posts: 6,200
Default Re: Vrata gluve sobe

Quote:
Originally Posted by DzoniPFC View Post
Ja mislim da bi rucno napravljena drvena dvoslojna vrata popunjena kamenom vunom bilo najbolje resenje ?
Definitivno nije najbolje resenje ako se gleda apsolutno u odnosu na svako drugo (bolje) resenje.
Dve su osnovne stvari koje se moraju zadovoljiti kod vrata gluve sobe:
1. Zaptivanje vazduha (zato su vrata "balkonska")
2. Sto veca tezina krila (zato konkretna barem nisu od PVC)

Drvena vrata punjena PESKOM(!) su recimo bolje resenje... od drvenih vrata punjenih kamenom vunom.

Punjenje kamenom vunom nije preterana izolacija ako nema mesta za "air gap"...

Ne kazem da je resenje koje navodis lose, jedino se ne slazem sa tvojim misljenjem da je "najbolje"

vly, zamolio bih te da ubuduce ne pozurujes clanove da ti odgovore, jer ako malo razmislis, shvatices da ovde niko tebi licno nije duzan da odgovara, te nema elementarnog razloga da nas opominjes!

pozdrav

bogi
__________________
@Facebook
@Instagram
Email: boggy@myroom-acoustics.com

--"We can never see past the choices we don't understand." (Oracle, The Matrix Reloaded)
boggy is offline   Reply With Quote
Old 20-10-2010, 04:07 PM   #7
pecass
Member
 
pecass's Avatar
 
Join Date: May 2008
Location: Beograd
Posts: 226
Default Re: Vrata gluve sobe

Mozda pomogne...
http://www.gearslutz.com/board/studi...oof-doors.html
pecass is offline   Reply With Quote
Old 20-10-2010, 10:29 PM   #8
vly
Member
 
vly's Avatar
 
Join Date: Apr 2006
Location: Beograd
Posts: 342
Default Re: Vrata gluve sobe

Pre svega,hvala svima na konkretnim savetima!

I mene isto brine nemasivnost okvira pvc vrata jer dzaba debela stakla i odlican dihtung ako mi zvuk curi kroz okvir...

Medjutim mislio sam da ta "vishekomornost" okvira deluje i kao neka vrsta "airgapova" na zvuk pa da se ta nemasivnost kompenzuje time?

Na ideju sam dosao kad sam video u jednom studiju da to sasvim ok funkcionise-naravno ukoliko ne panjim monitoring ko sivonja dok snimam...
Ta vrata su bila standardna pvc ali sa debljim staklima...


Pravljenje vrata od masivnoh drvenih,pa viseslojna izolacija nije nesto sto nisam ranije radio,ali me u ovom slucaju brine kako da obicnim vratima napravim taj savrseni dihtung sistem koji je na pvc vratima?

Ranije sam imao gluvu sobu potpno odvojenu od rezije,i od okoline,tako da su masivna izolovana vrata savrseno resavala problem..
Sad se u sobu ulazi iz rezije.

Moram jos da razmislim...

TNX jos jednom,

pozdrav,Vly!

Last edited by vly; 20-10-2010 at 10:55 PM.
vly is offline   Reply With Quote
Old 22-10-2010, 09:50 PM   #9
Eomsy
Pro Member
 
Eomsy's Avatar
 
Join Date: Jun 2009
Location: Okolica Zagreba
Posts: 849
Default Re: Vrata gluve sobe

No dobro, jel' tko onda napravio kakva DIY vrata ili ?to ..???
__________________
Brzo se zapalim ... al' sporo gorim ...

Studio Predator
Eomsy is offline   Reply With Quote
Old 22-10-2010, 11:21 PM   #10
DzoniPFC
Pro Member
 
Join Date: Oct 2008
Location: Belgrade
Posts: 806
Default Re: Vrata gluve sobe

1:15
http://www.youtube.com/watch?v=U1qGK6G6keU
DzoniPFC is offline   Reply With Quote
Reply


Currently Active Users Viewing This Thread: 1 (0 members and 1 guests)
 

Posting Rules
You may not post new threads
You may not post replies
You may not post attachments
You may not edit your posts

BB code is On
Smilies are On
[IMG] code is On
HTML code is On

Forum Jump

Similar Threads
Thread Thread Starter Forum Replies Last Post
pregradni zid izmedju control room-a i gluve sobe dacha70a Dizajn i konstrukcija studija 8 27-05-2010 12:15 AM
Problem vrata ! XerXed Dizajn i konstrukcija studija 9 19-12-2008 01:23 AM
PVC vrata i parket u akustici dr.Ru Dizajn i konstrukcija studija 4 13-12-2007 01:57 AM
Problem: vrata gluve sobe?! Rizzbo Dizajn i konstrukcija studija 16 05-06-2007 07:36 PM
Zvucna izolacija vrata Nocni Dizajn i konstrukcija studija 9 24-08-2005 03:29 PM


All times are GMT +1. The time now is 10:32 PM.


Powered by vBulletin® Version 3.8.12 by vBS
Copyright ©2000 - 2026, vBulletin Solutions Inc.
vB.Sponsors