Go Back   Rumski Forum > Studijska tehnika i instrumenti > Dizajn i konstrukcija studija

Dizajn i konstrukcija studija Diskusije i pomoc oko svih aspekata dizajna i konstrukcije kucnog/pro studija, gluve ili kontrolne sobe, tretman zidova i materijala...

Reply
 
Thread Tools Display Modes
Old 26-08-2011, 12:26 AM   #11
NLP
Moderator
 
NLP's Avatar
 
Join Date: May 2006
Location: Drugdje
Posts: 2,426
Default Re: Mekoninov future studio

Tebi treba "samo" control room u ovoj prostoriji ili jo? ne?to?
Koliki ima? proračun i koliko misli? na kraju krajeva ulo?iti?!
__________________
We are Dyslexia of Borg. Fusistance is retile. Your ass will be laminated.

Nenad Patkovic
https://www.facebook.com/NedPat34
https://www.facebook.com/aeracoustics
www.aer-acoustics.com
http://www.distopiksound.com/
https://mixanalog.com
NLP is offline   Reply With Quote
Old 26-08-2011, 07:08 AM   #12
mekonin
Member
 
Join Date: Jan 2007
Location: Beograd
Posts: 255
Default Re: Mekoninov future studio

Quote:
Originally Posted by NLP View Post
Tebi treba "samo" control room u ovoj prostoriji ili jo? ne?to?
Koliki ima? proračun i koliko misli? na kraju krajeva ulo?iti?!
Samo control room, a ulozio bih do 1000 evra.
mekonin is offline   Reply With Quote
Old 26-08-2011, 11:35 PM   #13
NLP
Moderator
 
NLP's Avatar
 
Join Date: May 2006
Location: Drugdje
Posts: 2,426
Default Re: Mekoninov future studio

Za te pare mo?e da malko tretira? prve refleksije i poneki superchunksevi, pokoji difuzor i to je to za toliko para i svakako u DIY ozvedbi.
Gabariti prostora nisu ba? slabi (ali ne i veoma dobri).
__________________
We are Dyslexia of Borg. Fusistance is retile. Your ass will be laminated.

Nenad Patkovic
https://www.facebook.com/NedPat34
https://www.facebook.com/aeracoustics
www.aer-acoustics.com
http://www.distopiksound.com/
https://mixanalog.com
NLP is offline   Reply With Quote
Old 30-09-2011, 11:28 AM   #14
mekonin
Member
 
Join Date: Jan 2007
Location: Beograd
Posts: 255
Default Re: Mekoninov future studio

Pozdrav,

ne javljam se ovoliko dugo zbog obaveza, a i najpre zbog toga sto sam se posvetio proucavanju materije vezano za akustiku.

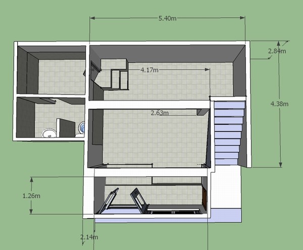
Ono sto mi i dalje predstavlja najveci problem i sto mi je ujedno i prva prepreka jeste problem simetrije. Bio bih jako zahvalan na bilo kakvom savetu sto se tice resavanja tog problema u vidu razumnih intervencija na prostoru i osnovne postavke zvucnika.
Zakacicu jos slika izvucenih iz projekta radi lakse vizualizacije.
Attached Images
    
mekonin is offline   Reply With Quote
Old 01-10-2011, 09:20 AM   #15
mekonin
Member
 
Join Date: Jan 2007
Location: Beograd
Posts: 255
Default Re: Mekoninov future studio

Kao prvo logicno resenje mi deluje da bi trebalo pregraditi prostor ispod kosog stepenista. Tu bi eventualno mogao napraviti ostavu ili vocal booth, u buducnosti. Tada bi jedini "neprekinuti" zid bio onaj nasuprot ulazu, koji bih mogao da tretiram apsorberima i sa dva superchunk-a u uglovima. Medjutim, tu imam problem sa stepenistem ispred ulaza u toalet, ne znam da li ima smisla tretirati taj cosak od stepenista do plafona za razliku od drugog koji bi bio od poda, to sigurno nije dobro za stereo sliku...

Takodje po toj orijentaciji, moj sweet spot ce biti postavljem malo ispred stepenista, okrenut ka ulazu. Na koji nacin bih mogao da tretiram tu stranu prostorije? Prva stvar koja mi pada na pamet jeste da stavim podnostojece apsorbere iza zvucnika. Druga stvar jeste pregradjivanje i te strane, ostavljajuci prostor za vrata, ali gubeci mnogo na prostoru. Naravno ja sve ovo pricam na osnovu logike DIY tretiranja ostalih project studija, koji su svi mahom prostorije pravilnog oblika.
Uz to, ne znam kako da pristupi racunanju room modova ovakve prostorije, s obzirom da su prvih 80ak cm od ulaza izdignuti 70 cm u odnosu na ostatak prostorije.
mekonin is offline   Reply With Quote
Old 01-10-2011, 12:03 PM   #16
Eomsy
Pro Member
 
Eomsy's Avatar
 
Join Date: Jun 2009
Location: Okolica Zagreba
Posts: 849
Default Re: Mekoninov future studio

Jel mo?e? molim te attachat sketch-up projekat, je rsu ti linkovi neaktivni , ba? bi malo pogledao, ako smijem ....

Quote:
Originally Posted by mekonin View Post
Kao prvo logicno resenje mi deluje da bi trebalo pregraditi prostor ispod kosog stepenista. Tu bi eventualno mogao napraviti ostavu ili vocal booth, u buducnosti.
Mali i je prostor za vocal booth ... trebaju ti VELIKI vokali, a ne "mali" (u zvuku), pogledaj moj thread, zbog istoga razloga sam ja odustao od toga. Ali da ti bude za računalo, fax, printer i ostale zujajuće stvari, to bi moglo proć ...

Quote:
Originally Posted by mekonin View Post
Tada bi jedini "neprekinuti" zid bio onaj nasuprot ulazu, koji bih mogao da tretiram apsorberima i sa dva superchunk-a u uglovima. Medjutim, tu imam problem sa stepenistem ispred ulaza u toalet, ne znam da li ima smisla tretirati taj cosak od stepenista do plafona za razliku od drugog koji bi bio od poda, to sigurno nije dobro za stereo sliku...
A da sazida? iste takve stepenice na drugoj strani?! Identična stereo slika ... ?alim se. Ne znam, mo?da ih razvaliti, pa napraviti ?eljezne lojtre (stepenice, merdevine?). Nisam ti tu ba? pametan. MO?da čika boggy ima koju pametniju od mene ...

Quote:
Originally Posted by mekonin View Post
Takodje po toj orijentaciji, moj sweet spot ce biti postavljem malo ispred stepenista, okrenut ka ulazu. Na koji nacin bih mogao da tretiram tu stranu prostorije?
Ovako odokativno, mislim da će ti ?irina stepenica smetati radnome stolu, stalcima za monitore, pa brijem da bi ih trebao prepoloviti. A na vrata (kao i na prozore) i ispod prozora napraviti neke absorbere. Bezveze je to pregrađivati, kada ionako ne mo?e? sav taj prostor tretirati (napuniti vunom), pa da bude veliki bass trap ...
__________________
Brzo se zapalim ... al' sporo gorim ...

Studio Predator
Eomsy is offline   Reply With Quote
Old 01-10-2011, 12:23 PM   #17
mekonin
Member
 
Join Date: Jan 2007
Location: Beograd
Posts: 255
Default Re: Mekoninov future studio

Quote:
Originally Posted by Eomsy View Post
Jel mo?e? molim te attachat sketch-up projekat, je rsu ti linkovi neaktivni , ba? bi malo pogledao, ako smijem ....
Naravno! Evo svezeg linka:

http://www.sendspace.com/file/6lg50s

Quote:
Originally Posted by Eomsy View Post
Mali i je prostor za vocal booth ... trebaju ti VELIKI vokali, a ne "mali" (u zvuku), pogledaj moj thread, zbog istoga razloga sam ja odustao od toga. Ali da ti bude za računalo, fax, printer i ostale zujajuće stvari, to bi moglo proć ...
Da, ostava je verovatno najpametnije resenje. A vokale bih eventualno mogao snimati u samom control roomu, kao sto predlazu na ovom linku:
http://www.realtraps.com/art_booth.htm



Quote:
Originally Posted by Eomsy View Post
A da sazida? iste takve stepenice na drugoj strani?! Identična stereo slika ... ?alim se. Ne znam, mo?da ih razvaliti, pa napraviti ?eljezne lojtre (stepenice, merdevine?). Nisam ti tu ba? pametan. MO?da čika boggy ima koju pametniju od mene ...
Dobra ideja, nije mi pala na pamet
Razmisljao sam o razbijanju, ali to je ipak beton, bice dosta problema to razbiti i srediti, ali ako ne postoji drugo resenje...


Quote:
Originally Posted by Eomsy View Post
Ovako odokativno, mislim da će ti ?irina stepenica smetati radnome stolu, stalcima za monitore, pa brijem da bi ih trebao prepoloviti. A na vrata (kao i na prozore) i ispod prozora napraviti neke absorbere. Bezveze je to pregrađivati, kada ionako ne mo?e? sav taj prostor tretirati (napuniti vunom), pa da bude veliki bass trap ...
Mislis prepoloviti duzinu stepenica ispred izdignutog dela? To je slican poduhvat razbijanju stepenica ispred ulaza u toalet. Ako bih vec resio da ih razbijem razbio bih ih skroz, i tu postavio gvozdene ili neke druge stepenice. Koliko uticu i one u sadasnjem stanju na stereo sliku?
Apsorbere bih svakako stavio na tu stranu, samo me zanima da li bi bilo najpametnije postaviti ih direktno preko prozora i vrata ili ih mogu postaviti blize zvucnicima na stalcima i dobiti zeljeni efekat?
mekonin is offline   Reply With Quote
Old 01-10-2011, 03:32 PM   #18
Eomsy
Pro Member
 
Eomsy's Avatar
 
Join Date: Jun 2009
Location: Okolica Zagreba
Posts: 849
Default Re: Mekoninov future studio

Quote:
Originally Posted by mekonin View Post
Naravno! Evo svezeg linka:

http://www.sendspace.com/file/6lg50s
Skinuto ... gledam docnije ...

Quote:
Originally Posted by mekonin View Post
Da, ostava je verovatno najpametnije resenje. A vokale bih eventualno mogao snimati u samom control roomu, kao sto predlazu na ovom linku:
http://www.realtraps.com/art_booth.htm
Kao i tu na sticky-ima ... recimo moj studio ...


Quote:
Originally Posted by mekonin View Post
Mislis prepoloviti duzinu stepenica ispred izdignutog dela? To je slican poduhvat razbijanju stepenica ispred ulaza u toalet. Ako bih vec resio da ih razbijem razbio bih ih skroz, i tu postavio gvozdene ili neke druge stepenice. Koliko uticu i one u sadasnjem stanju na stereo sliku?
Gle, tebi nitko nemre ionak reć kaj da radi?, a kaj ne ... Ja mislim da ak radi? jedanput - NAPRAVI? PO?TENO . Mislim da ti ulazne stepenice su ionako prevelike za stol, monitore i sl ... Ali pričekajmo veće umove da ka?u kaj misle o tome!
Quote:
Originally Posted by mekonin View Post
Apsorbere bih svakako stavio na tu stranu, samo me zanima da li bi bilo najpametnije postaviti ih direktno preko prozora i vrata ili ih mogu postaviti blize zvucnicima na stalcima i dobiti zeljeni efekat?
A koji efekt hoće? postići ... mo?da sam fulao negdje ...
__________________
Brzo se zapalim ... al' sporo gorim ...

Studio Predator
Eomsy is offline   Reply With Quote
Old 01-10-2011, 06:39 PM   #19
mekonin
Member
 
Join Date: Jan 2007
Location: Beograd
Posts: 255
Default Re: Mekoninov future studio

Quote:
Originally Posted by Eomsy View Post
Skinuto ... gledam docnije ...



Kao i tu na sticky-ima ... recimo moj studio ...
Ako mislis na thread gde si konstruisao vocal absorber, to je bas to na sta sam mislio i odlicno si odradio posao.


Quote:
Originally Posted by Eomsy View Post
A koji efekt hoće? postići ... mo?da sam fulao negdje ...
Mislio sam na efekat apsorpcije niskih frekvencija sa strane prednjeg zida tj. iza zvucnika. Zanima me da li bi se postigao isti efekat ako bih pomerio apsobere od zida napred ka zvucnicima, kao sto bi bilo sa apsorberima na prozorima i vratima. Da recimo ogradim zvucnike apsorberima sa zadnje strane i sprecim sirenje niskih frekvencija iza njih.
mekonin is offline   Reply With Quote
Old 01-10-2011, 08:21 PM   #20
boggy
Moderator
 
boggy's Avatar
 
Join Date: Sep 2005
Location: Beograd
Posts: 6,200
Default Re: Mekoninov future studio

Quote:
Originally Posted by mekonin View Post
Ako mislis na thread gde si konstruisao vocal absorber, to je bas to na sta sam mislio i odlicno si odradio posao.
Eomsy-jev studio:
DIY Vocal booth & Control room?!
__________________
@Facebook
@Instagram
Email: boggy@myroom-acoustics.com

--"We can never see past the choices we don't understand." (Oracle, The Matrix Reloaded)
boggy is offline   Reply With Quote
Reply


Currently Active Users Viewing This Thread: 1 (0 members and 1 guests)
 
Thread Tools
Display Modes

Posting Rules
You may not post new threads
You may not post replies
You may not post attachments
You may not edit your posts

BB code is On
Smilies are On
[IMG] code is On
HTML code is On

Forum Jump

Similar Threads
Thread Thread Starter Forum Replies Last Post
The Future Of Apple Coconut Razno 2 13-08-2010 01:25 PM
Benassi brothers studio u Future Music DaBear Razno 83 10-09-2008 01:57 PM
Future Music Arthur Tutorijali 18 28-12-2004 11:51 PM


All times are GMT +1. The time now is 08:34 AM.


Powered by vBulletin® Version 3.8.12 by vBS
Copyright ©2000 - 2026, vBulletin Solutions Inc.
vB.Sponsors