Go Back   Rumski Forum > Studijska tehnika i instrumenti > Dizajn i konstrukcija studija

Dizajn i konstrukcija studija Diskusije i pomoc oko svih aspekata dizajna i konstrukcije kucnog/pro studija, gluve ili kontrolne sobe, tretman zidova i materijala...

Reply
 
Thread Tools Display Modes
Old 24-01-2007, 04:43 PM   #11
Tiki the Boyler
Moderator
 
Tiki the Boyler's Avatar
 
Join Date: Aug 2003
Location: Banja Luka
Posts: 1,742
Default Re: jel moze ovako?

@zmaj
Možeš li mi objasniti zašto insistiraš na simetriji "gluve sobe" ?!?

Inicijalna zamisao i nije toliko loša... samo je treba malo doraditi!
__________________
'
'The Funk' is the space that lives between the notes!

Tiki the Boyler is offline   Reply With Quote
Old 24-01-2007, 09:59 PM   #12
zmaj
Stara Rumski Elita 2003.
 
zmaj's Avatar
 
Join Date: Sep 2003
Location: Beograd
Posts: 1,179
Default Re: jel moze ovako?

Quote:
Originally Posted by Tiki the Boyler
@zmaj
Možeš li mi objasniti zašto insistiraš na simetriji "gluve sobe" ?!?
Na osnovu prethodnih filipovih postova,a vezano za snimanje bubnja (room mics,itd.)...
zmaj is offline   Reply With Quote
Old 25-01-2007, 01:13 AM   #13
filip
Senior Member
 
filip's Avatar
 
Join Date: Jun 2004
Location: Novi Sad
Posts: 458
Default Re: jel moze ovako?

Quote:
Originally Posted by Tiki the Boyler
@zmaj
Mo?e? li mi objasniti za?to insistira? na simetriji "gluve sobe" ?!?

Inicijalna zamisao i nije toliko lo?a... samo je treba malo doraditi!
pomagaj ako imas volje
filip is offline   Reply With Quote
Old 25-01-2007, 01:19 AM   #14
filip
Senior Member
 
filip's Avatar
 
Join Date: Jun 2004
Location: Novi Sad
Posts: 458
Default Re: jel moze ovako?

Ok, dakle, znam da taj setup nije savrsen, samo sam trazio bilo kakvo resenje (koje moze da prodje) u kom bih mogao da snimam i bubanj. Pitanje je sada za koju vrijantu ici: bolje resenje, nema bubnjeva / gore resenje (ali ipak solidno) ali da ima mesta za bubanj. Druga varijanta (ako mora) bi bila nesto ovako (moguce je da i ovde imam dosta gresaka, oprostite):



ovo mi je jako malo... nema sanse da u "gluvoj sobi" bude vise od 130x80cm.....
pozdrav

Last edited by filip; 25-01-2007 at 02:33 AM.
filip is offline   Reply With Quote
Old 25-01-2007, 09:24 AM   #15
boggy
Moderator
 
boggy's Avatar
 
Join Date: Sep 2005
Location: Beograd
Posts: 6,200
Default Re: jel moze ovako?

Filipe, za snimanje bubnja se bojim da ti je i ceo taj tvoj prostor mali, samo za sobu za snimanje... realno na ovim prostorima ima veoma malo dobrih soba za bubanj... cak i ako su velike.... ako ne mozes da uradis to kako dolikuje nemoj se smarati i bacati pare bezveze... koliko god bile male (pare).


Pri tom, podji od pretpostavke da neces snimati bubanj, nego da treba da napravis vezbaonicu za bubanj... znaci sobu gde bubanj nece smetati drugima... sa tim "tretmancicima" koje si ucrtao neces pokriti frekventni opseg bubnja... koji je izuzetno sirok.... samo ces zamutaviti sobu i dobices "neki" snimak ako probas da snimas... koji ti se na kraju nece svideti...
Za vokale, i da razumem... ali za bubanj... preterujes.

Nisam video da si negde naveo koliko ti je visok prostor....


pozdrav

bogi

p.s. sto se tice predloga resenja... nekako mi je najmanje lose ono zakoseno sa pocetka price... ovo poslednje bi bilo uzas... osim ako u tom sobicku ne budes drzao metle i pc...
__________________
@Facebook
@Instagram
Email: boggy@myroom-acoustics.com

--"We can never see past the choices we don't understand." (Oracle, The Matrix Reloaded)
boggy is offline   Reply With Quote
Old 25-01-2007, 09:35 AM   #16
boggy
Moderator
 
boggy's Avatar
 
Join Date: Sep 2005
Location: Beograd
Posts: 6,200
Default Re: jel moze ovako?

Quote:
Originally Posted by zmaj
Na osnovu prethodnih filipovih postova,a vezano za snimanje bubnja (room mics,itd.)...
Ima smisla simetrija sobe za bubanj... doduse to se tek kasnije namesta pazljivim pozicioniranjem bubnja u sobi... to moze biti jako dugotrajan posao ako covek zeli to da uradi kako valja... ali se i moze "razbacati" bubanj i udri... i to se moze tolerisati

pozdrav

bogi
__________________
@Facebook
@Instagram
Email: boggy@myroom-acoustics.com

--"We can never see past the choices we don't understand." (Oracle, The Matrix Reloaded)
boggy is offline   Reply With Quote
Old 25-01-2007, 11:01 AM   #17
filip
Senior Member
 
filip's Avatar
 
Join Date: Jun 2004
Location: Novi Sad
Posts: 458
Default Re: jel moze ovako?

Quote:
Originally Posted by boggy
Filipe, za snimanje bubnja se bojim da ti je i ceo taj tvoj prostor mali, samo za sobu za snimanje... realno na ovim prostorima ima veoma malo dobrih soba za bubanj... cak i ako su velike.... ako ne mozes da uradis to kako dolikuje nemoj se smarati i bacati pare bezveze... koliko god bile male (pare).


Pri tom, podji od pretpostavke da neces snimati bubanj, nego da treba da napravis vezbaonicu za bubanj... znaci sobu gde bubanj nece smetati drugima... sa tim "tretmancicima" koje si ucrtao neces pokriti frekventni opseg bubnja... koji je izuzetno sirok.... samo ces zamutaviti sobu i dobices "neki" snimak ako probas da snimas... koji ti se na kraju nece svideti...
Za vokale, i da razumem... ali za bubanj... preterujes.

Nisam video da si negde naveo koliko ti je visok prostor....


pozdrav

bogi

pozdrav Boggy, i hvala na odgovorima

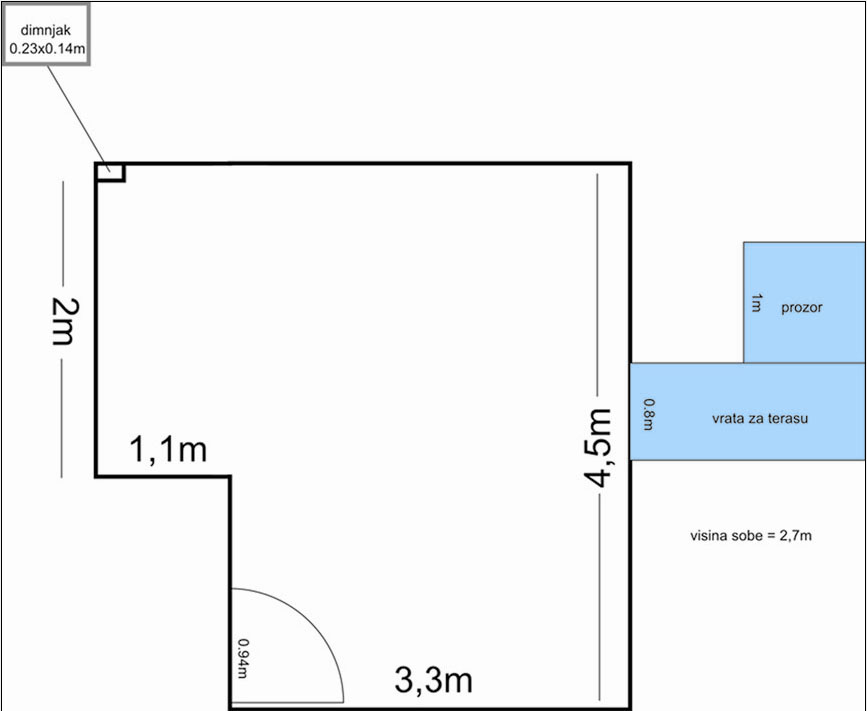
kao prvo, u svakoj fotografiji pise sa desne strane (ali se verovatno slabo vidi) da je visina sobe 2,7m

OK, ako bi ova soba bila ostavljena samo za jedno (ili rezija ili gluva soba), za sta bi to bilo najbolje?

Moja predpostavka je da ako se napravi pravougaona soba kao na zadnjoj slici (ali bez izolacije za taj malo vokal booth), vec da bude mesto za neku potrebnu opremu (mozdra insrumente), i ako se akustika dobro uradi u ostatku sobe, najbolje je da posluzi kao rezija. Tu je problem i vrata+prozor za terasu. Ispravite me ako nisam u pravu.

Primetite da sam skinuo u donjem desnom uglu bass trap zbog ulaznih vrata u sobu gde je nemoguce napraviti isti bass trap, i pri svemu ovome ne znam da li je i bez tog jednog ispravno.

U ovom slucaju kad je prostor namenjen da posluzi kao jedno, onda se u pricu (ako bude dovoljno finansija) mora dodati jos jedna soba, a ta soba je (prema slici) "ispod" ove prve, i dele taj donji zid... Ova soba je cist pravougaonik i za koji min ce sledeti nove slike...

p.s. hvala vam svima na pomoci, sami vidite kako bi zavrsio da nema vas. Hvala
filip is offline   Reply With Quote
Old 25-01-2007, 11:05 AM   #18
boggy
Moderator
 
boggy's Avatar
 
Join Date: Sep 2005
Location: Beograd
Posts: 6,200
Default Re: jel moze ovako?

Quote:
Originally Posted by filip
....Ova soba je cist pravougaonik i za koji min ce sledeti nove slike...

...
Ako mozes postuj ih ovde direktno na forum preko upload images... nista na linkovima nema (barem meni ne radi) osim praznih mesta za reklame... zato i nisam video visine... jedva sam sirine i duzine naslutio...

pozdrav

bogi
__________________
@Facebook
@Instagram
Email: boggy@myroom-acoustics.com

--"We can never see past the choices we don't understand." (Oracle, The Matrix Reloaded)
boggy is offline   Reply With Quote
Old 25-01-2007, 12:36 PM   #19
filip
Senior Member
 
filip's Avatar
 
Join Date: Jun 2004
Location: Novi Sad
Posts: 458
Default Re: jel moze ovako?

sad radi
Attached Images
    

Last edited by filip; 25-01-2007 at 12:41 PM.
filip is offline   Reply With Quote
Old 25-01-2007, 01:10 PM   #20
filip
Senior Member
 
filip's Avatar
 
Join Date: Jun 2004
Location: Novi Sad
Posts: 458
Default Re: jel moze ovako?

5-ta slika je zamisao (opet ako se mora) da upotrebim 2 sobe. Jasno je da je u startu to odmah najbolje, ali iz finansijskih razloga mi to sada jaaako tesko pada, i time dajem sve od sebe da smestim sve u 1 sobu. Zato sada gledam opciju kako cu manje "baciti pare", tj, da li je odmah bolje da radim sa 2 sobe...
evo je slika 5


dimenzije druge sobe su 4.3x3.6m plus prozor koji je 2m sirok (izvinjavam se, ne znam trenutno visinu prozora)

U "reziji" sam nabacao neke ideje resavanja akustike, i moguce da sam skroooooz pogresio, i izvinjavam se ako je tako... Da ne bih opet nagadjao, ostavio sam namerno drugu sobu praznu
Attached Images
 

Last edited by filip; 25-01-2007 at 01:15 PM.
filip is offline   Reply With Quote
Reply


Currently Active Users Viewing This Thread: 1 (0 members and 1 guests)
 

Posting Rules
You may not post new threads
You may not post replies
You may not post attachments
You may not edit your posts

BB code is On
Smilies are On
[IMG] code is On
HTML code is On

Forum Jump

Similar Threads
Thread Thread Starter Forum Replies Last Post
Koja budzet gitara moze da zvuci ovako? goranvu Gitarska Produkcija 6 10-11-2007 02:35 AM
Pro Tools X 2?!Evo ovako... kravadinka Audio Software 18 30-08-2007 06:28 PM
Ja bih ovako nesto... silicon science Sintesajzeri, Klavijature i Elektronika 41 22-08-2007 11:27 PM
ovako se svira!!! balthazaar Razno 3 21-10-2006 11:32 AM


All times are GMT +1. The time now is 12:50 PM.


Powered by vBulletin® Version 3.8.12 by vBS
Copyright ©2000 - 2026, vBulletin Solutions Inc.
vB.Sponsors