Go Back   Rumski Forum > Studijska tehnika i instrumenti > Dizajn i konstrukcija studija

Dizajn i konstrukcija studija Diskusije i pomoc oko svih aspekata dizajna i konstrukcije kucnog/pro studija, gluve ili kontrolne sobe, tretman zidova i materijala...

Reply
 
Thread Tools Display Modes
Old 02-07-2012, 03:48 PM   #11
Eomsy
Pro Member
 
Eomsy's Avatar
 
Join Date: Jun 2009
Location: Okolica Zagreba
Posts: 849
Default Re: Sobna vrata

Quote:
Originally Posted by MarkoX50 View Post
Bilo bi najbolje kad bi bilo prostora između dvoje vrata,ali mi je TANAK ZID
Sa tim si sam odgovorio na problem!!! A to je da neće? moćI IZOLIRATI BASS FREKVENCIJE, tj. da će se iste ćut, stavio ti blendirana vrata ili ne ... U tvom slučaju bi onda vjerojatno preporučio da ide? na pvc vrata ...
__________________
Brzo se zapalim ... al' sporo gorim ...

Studio Predator
Eomsy is offline   Reply With Quote
Old 02-07-2012, 11:38 PM   #12
NLP
Moderator
 
NLP's Avatar
 
Join Date: May 2006
Location: Drugdje
Posts: 2,426
Default Re: Sobna vrata

PVC če propu?tati i dosta vi?e srednje, zato barem masivna drvena vrata.
__________________
We are Dyslexia of Borg. Fusistance is retile. Your ass will be laminated.

Nenad Patkovic
https://www.facebook.com/NedPat34
https://www.facebook.com/aeracoustics
www.aer-acoustics.com
http://www.distopiksound.com/
https://mixanalog.com
NLP is offline   Reply With Quote
Old 03-07-2012, 10:03 AM   #13
boggy
Moderator
 
boggy's Avatar
 
Join Date: Sep 2005
Location: Beograd
Posts: 6,200
Default Re: Sobna vrata

Quote:
Originally Posted by SumAnuT View Post
Mozda dupla obicna ta sto imas, samo jos jedna da stavis?
Ma mozes i deset krila da dodas, ali ako ni jedno ne dihtuje po celom obimu, dzaba. To je slaba karika sobnih vrata, bez obzira koliko da su teska i masivna.

Quote:
Originally Posted by Eomsy View Post
Sa tim si sam odgovorio na problem!!! A to je da nećeš moćI IZOLIRATI BASS FREKVENCIJE, tj. da će se iste ćut, stavio ti blendirana vrata ili ne ... U tvom slučaju bi onda vjerojatno preporučio da ideš na pvc vrata ...
Ako je zid od cigle, obezbedice neku zvucnu izolaciju bolju nego obicna sobna vrata, makar taj zid bio zidan ciglom "na kant". Takodje, cak ni protivprovalna vrata nemaju tezinu kao tanki cigleni zid iste povrsine, te su i dalje ta vrata najslabija karika u ukupnoj zvucnoj izolaciji.

Quote:
Originally Posted by NLP View Post
PVC če propuštati i dosta više srednje, zato barem masivna drvena vrata.
Protivprovalna vrata su teska ali i DIHTUJU po celom svom obimu koji je DRUGI potreban uslov za zvucnu izolaciju (velika masa i dihtovanje po celom obimu). Od komercijalno dostupnih OBICNIH vrata (ne specijalno pravljenih za zvucnu izolaciju) samo balkonska i protivprovalna vrata mogu imati osobine blizu opisanih, bez preteranih modifikacija... koje bi skupo kostale.
__________________
@Facebook
@Instagram
Email: boggy@myroom-acoustics.com

--"We can never see past the choices we don't understand." (Oracle, The Matrix Reloaded)

Last edited by boggy; 03-07-2012 at 11:34 AM.
boggy is offline   Reply With Quote
Old 03-07-2012, 10:26 AM   #14
NLP
Moderator
 
NLP's Avatar
 
Join Date: May 2006
Location: Drugdje
Posts: 2,426
Default Re: Sobna vrata

Jeste bez dihtovanja je sve bez veze.
Mogu se i masivna drvena "opremiti" sa dosta dobrim dihtovanjem.
__________________
We are Dyslexia of Borg. Fusistance is retile. Your ass will be laminated.

Nenad Patkovic
https://www.facebook.com/NedPat34
https://www.facebook.com/aeracoustics
www.aer-acoustics.com
http://www.distopiksound.com/
https://mixanalog.com
NLP is offline   Reply With Quote
Old 03-07-2012, 11:31 AM   #15
boggy
Moderator
 
boggy's Avatar
 
Join Date: Sep 2005
Location: Beograd
Posts: 6,200
Default Re: Sobna vrata

Quote:
Originally Posted by NLP View Post
Jeste bez dihtovanja je sve bez veze.
Mogu se i masivna drvena "opremiti" sa dosta dobrim dihtovanjem.
Ma znam da sve moze, pricali smo o "najekonomicnijem resenju".
__________________
@Facebook
@Instagram
Email: boggy@myroom-acoustics.com

--"We can never see past the choices we don't understand." (Oracle, The Matrix Reloaded)
boggy is offline   Reply With Quote
Old 03-07-2012, 02:20 PM   #16
awacs
VIP Member
 
awacs's Avatar
 
Join Date: Aug 2006
Location: Zemun
Posts: 4,889
Default Re: Sobna vrata

Quote:
Originally Posted by boggy View Post
Ma znam da sve moze, pricali smo o "najekonomicnijem resenju".
Jedini "problem" sa tvojim (inače savr?eno racionalnim) predlogom je to ?to se vrata koja si pomenuo uop?te nazivaju "protivprovalnim". Kad bi ih neko u katalogu nazvao "vrata sa zvučnom izolacijom" (?to bi takođe bila istina) MarkoX50 bi ih verovatno odmah kupio.

Pozdrav,

Vasa
__________________
TEHNIKA NARODU!
awacs is offline   Reply With Quote
Old 03-07-2012, 02:35 PM   #17
NLP
Moderator
 
NLP's Avatar
 
Join Date: May 2006
Location: Drugdje
Posts: 2,426
Default Re: Sobna vrata

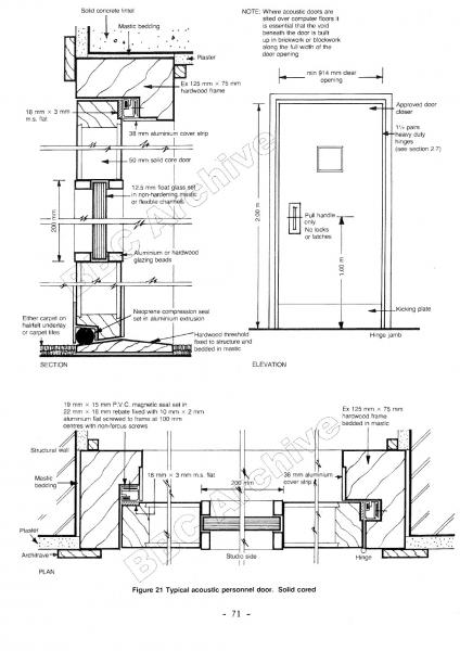
Malo informacija:
http://downloads.bbc.co.uk/rd/pubs/reports/1994-14.pdf
http://downloads.bbc.co.uk/rd/pubs/reports/1994-15.pdf
Attached Images
 
__________________
We are Dyslexia of Borg. Fusistance is retile. Your ass will be laminated.

Nenad Patkovic
https://www.facebook.com/NedPat34
https://www.facebook.com/aeracoustics
www.aer-acoustics.com
http://www.distopiksound.com/
https://mixanalog.com
NLP is offline   Reply With Quote
Old 03-07-2012, 06:32 PM   #18
boggy
Moderator
 
boggy's Avatar
 
Join Date: Sep 2005
Location: Beograd
Posts: 6,200
Default Re: Sobna vrata

Quote:
Originally Posted by awacs View Post
Jedini "problem" sa tvojim (inače savršeno racionalnim) predlogom je to što se vrata koja si pomenuo uopšte nazivaju "protivprovalnim". Kad bi ih neko u katalogu nazvao "vrata sa zvučnom izolacijom" (što bi takođe bila istina) MarkoX50 bi ih verovatno odmah kupio.
....
Ne bi... jer covek nema "pravi" studio... a ni spavaca soba mu bas nije kao kod ostalih... a neko kada bira izmedju dve stvari, prakticno izabere trecu koja se zove "dilema", i bude vrlo entuzijastican i tvrdoglavo ne odustaje od nje... pa kad mi nagnemo da ostane kako jeste (stara i suplja vrata), onda je velika buka... a kada "navalimo" da sredimo buku (u ozbiljnijoj meri), onda su protivprovalna vrata (kao) "neprikladna"...

EDIT: Inace, PVC BALKONSKA vrata bi mogla, ali sa debelim i teskim staklom... ne znam koliko je to bezbedno....
__________________
@Facebook
@Instagram
Email: boggy@myroom-acoustics.com

--"We can never see past the choices we don't understand." (Oracle, The Matrix Reloaded)

Last edited by boggy; 03-07-2012 at 07:04 PM.
boggy is offline   Reply With Quote
Old 07-08-2015, 07:34 AM   #19
MaNo15
Junior Member
 
Join Date: Aug 2015
Posts: 1
Default Re: Sobna vrata

Dihtovanjem? Vakuum-om dvaju stakla u vratima?
__________________
Sobna vrata
MaNo15 is offline   Reply With Quote
Old 07-08-2015, 09:29 AM   #20
NLP
Moderator
 
NLP's Avatar
 
Join Date: May 2006
Location: Drugdje
Posts: 2,426
Default Re: Sobna vrata

http://www.rumski.com/forum/showpost...0&postcount=17
__________________
We are Dyslexia of Borg. Fusistance is retile. Your ass will be laminated.

Nenad Patkovic
https://www.facebook.com/NedPat34
https://www.facebook.com/aeracoustics
www.aer-acoustics.com
http://www.distopiksound.com/
https://mixanalog.com
NLP is offline   Reply With Quote
Reply


Currently Active Users Viewing This Thread: 1 (0 members and 1 guests)
 

Posting Rules
You may not post new threads
You may not post replies
You may not post attachments
You may not edit your posts

BB code is On
Smilies are On
[IMG] code is On
HTML code is On

Forum Jump

Similar Threads
Thread Thread Starter Forum Replies Last Post
Vrata, prozori, prostor ??? File Dizajn i konstrukcija studija 14 28-01-2011 11:43 PM
Vrata gluve sobe vly Dizajn i konstrukcija studija 54 11-11-2010 12:25 PM
Problem vrata ! XerXed Dizajn i konstrukcija studija 9 19-12-2008 01:23 AM
PVC vrata i parket u akustici dr.Ru Dizajn i konstrukcija studija 4 13-12-2007 01:57 AM
Zvucna izolacija vrata Nocni Dizajn i konstrukcija studija 9 24-08-2005 03:29 PM


All times are GMT +1. The time now is 12:45 AM.


Powered by vBulletin® Version 3.8.12 by vBS
Copyright ©2000 - 2026, vBulletin Solutions Inc.
vB.Sponsors