Go Back   Rumski Forum > Studijska tehnika i instrumenti > Dizajn i konstrukcija studija

Dizajn i konstrukcija studija Diskusije i pomoc oko svih aspekata dizajna i konstrukcije kucnog/pro studija, gluve ili kontrolne sobe, tretman zidova i materijala...

Reply
 
Thread Tools Display Modes
Old 15-12-2006, 10:17 PM   #11
alavuk
Pro Member
 
alavuk's Avatar
 
Join Date: Aug 2006
Location: Skopje
Posts: 4,664
Default Re: potkrovlje ...

nadam se da vam je ovaj tehnicki crtez koji je boggy uploadovao i pomucio se da smanji ovaj ogroman fajl , pomogao ...

zahvaljujem se devojci sto je bila ovoliko ljubazna i detaljna da je nacrta :]
__________________
menjam nove fosile za ritam masinu ...





xxx says : "Preko dana zemljoradnik a nocu disko zvezda"
alavuk is offline   Reply With Quote
Old 18-12-2006, 12:14 AM   #12
RetroMan
Senior Member
 
RetroMan's Avatar
 
Join Date: Apr 2006
Location: DreamLand
Posts: 672
Default Re: potkrovlje ...

Quote:
Originally Posted by SumAnuT
zakljucio sam da je potkrovlje ubedljivo najbolje resenje za studio
Pogotovo zgodno doje kad treba da nosis na snimanje instrumente, naprimer Hammond i Leslie mislim, dobro je za kondiciju.

RM
RetroMan is offline   Reply With Quote
Old 18-12-2006, 12:16 AM   #13
alavuk
Pro Member
 
alavuk's Avatar
 
Join Date: Aug 2006
Location: Skopje
Posts: 4,664
Default Re: potkrovlje ...

uh ... zamisli moja zgrada nema lift ... bas bi bilo treniranja za godinu dana ... ili kranom na moju terasu :]
__________________
menjam nove fosile za ritam masinu ...





xxx says : "Preko dana zemljoradnik a nocu disko zvezda"
alavuk is offline   Reply With Quote
Old 19-12-2006, 03:31 AM   #14
boggy
Moderator
 
boggy's Avatar
 
Join Date: Sep 2005
Location: Beograd
Posts: 6,200
Default Re: potkrovlje ...

Ima li iko ideju kako da se alavukov prostor organizuje... izgleda malo, prostorija nezgodno "slomljena", asimetricna potpuno... nista mi ne pada na pamet...

Mozda je najbolje ne deliti je...

pozdrav

bogi
__________________
@Facebook
@Instagram
Email: boggy@myroom-acoustics.com

--"We can never see past the choices we don't understand." (Oracle, The Matrix Reloaded)
boggy is offline   Reply With Quote
Old 19-12-2006, 02:06 PM   #15
RetroMan
Senior Member
 
RetroMan's Avatar
 
Join Date: Apr 2006
Location: DreamLand
Posts: 672
Default Re: potkrovlje ...

Quote:
Originally Posted by boggy
Ima li iko ideju kako da se alavukov prostor organizuje... izgleda malo, prostorija nezgodno "slomljena", asimetricna potpuno...
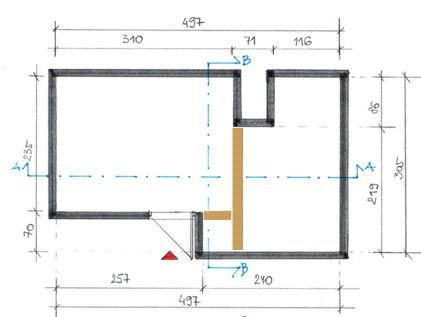
Prostor je suvise mali za ozbiljnije akusticke zahvate, i u principu je jeftinije napraviti veci prostor nego mali obraditi akusticki (kvalitetno), ali sad sta je tu je. Najvaznije je da kontrolna soba bude simetricna, a za gluvu sobu to nije bitno. Simetriju je moguce postici sa dva pregradna zida (kao na slici) i obavezno plafon (koji je asimetrican) "debelo" umrtviti, cime se ublazava asimetrija i istovremeno postize efekat kao da je plafon znatno visi. Dobiju se tri "prostorije" najveca je kontrolna soba, manja je soba za svirku a treca je prakticno ostava (orman) za kablove, lemilicu, pedale...

RM

P.S. Nisam crtao vrata, pa ih stavi tamo gde ti odgovara, odnosno gde po visini imas doviljno prostora.
Attached Images
 

Last edited by RetroMan; 19-12-2006 at 02:08 PM.
RetroMan is offline   Reply With Quote
Old 19-12-2006, 02:20 PM   #16
boggy
Moderator
 
boggy's Avatar
 
Join Date: Sep 2005
Location: Beograd
Posts: 6,200
Default Re: potkrovlje ...

Da, to izgleda kao najbolje resenje... ne moze se nikako podeliti a da ne ostane neki "budzak"

Hvala RetroMan

pozdrav

bogi
__________________
@Facebook
@Instagram
Email: boggy@myroom-acoustics.com

--"We can never see past the choices we don't understand." (Oracle, The Matrix Reloaded)
boggy is offline   Reply With Quote
Old 19-12-2006, 03:28 PM   #17
alavuk
Pro Member
 
alavuk's Avatar
 
Join Date: Aug 2006
Location: Skopje
Posts: 4,664
Default Re: potkrovlje ...

pa ovaj ja se izvinjavam sto nisam bio previse jasan , znaci , trebace mi samo neka "zbudzena" gluva soba i naravno najvaznije od svega mi je kontrolna soba . inace vrata su mi tamo gde je crvena strelica na originalnom crtezu ... mozda bi bilo najbolje resenje da se rotiram sa kompom i svima na levu stranu kad gledate crtez posto vec tu imam dasku i nekako mi je tu najsire , ali kao sto ste rekli vec , neku pravilnost rusi taj dimnjak ...

hvala na razmisljanju i resenju ... svakako ce se uzeti u obzir sve ovo :]

Alavuk
__________________
menjam nove fosile za ritam masinu ...





xxx says : "Preko dana zemljoradnik a nocu disko zvezda"
alavuk is offline   Reply With Quote
Reply


Currently Active Users Viewing This Thread: 1 (0 members and 1 guests)
 

Posting Rules
You may not post new threads
You may not post replies
You may not post attachments
You may not edit your posts

BB code is On
Smilies are On
[IMG] code is On
HTML code is On

Forum Jump


All times are GMT +1. The time now is 06:54 AM.


Powered by vBulletin® Version 3.8.12 by vBS
Copyright ©2000 - 2026, vBulletin Solutions Inc.
vB.Sponsors