Go Back   Rumski Forum > Studijska tehnika i instrumenti > Dizajn i konstrukcija studija

Dizajn i konstrukcija studija Diskusije i pomoc oko svih aspekata dizajna i konstrukcije kucnog/pro studija, gluve ili kontrolne sobe, tretman zidova i materijala...

Reply
 
Thread Tools Display Modes
Old 14-03-2007, 12:20 PM   #1
gricko
Member
 
Join Date: Sep 2004
Location: Banja Luka
Posts: 139
Default studio u izgradnji

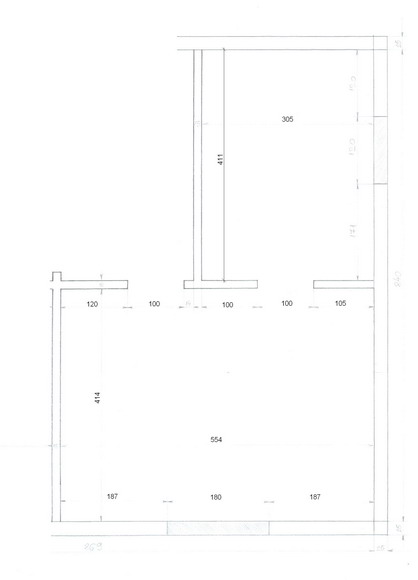
Zanimaju me vasi komentari na prostorije koje imam na raspolaganju. Radi se o potkrovlju ali su bocni zidovi visoki tako da i nece biti kosina na plafonu od krova.
Posto sam imao nacrtan plan prostorija skenirao sam samo ove dve prostorije predvidjene za studio.
Da li su prozori i vrata na dobroj poziciji? Jos uvijek imam fore da sve prepravim ali od svih kombinacija ovako mi se cini najbolje.
I jos samo da pitam, mogu li pregradne zidove raditi od gipsanih ploca sa izolacijom izmedju?
Eto za sada toliko, bice jos pitanja, posebno vezano za akusticki tretman
Attached Images
 
__________________
No sikiriki!
gricko is offline   Reply With Quote
Old 14-03-2007, 02:24 PM   #2
Tiki the Boyler
Moderator
 
Tiki the Boyler's Avatar
 
Join Date: Aug 2003
Location: Banja Luka
Posts: 1,742
Default Re: Studio u izgradnji

Kolika je visina prostora?
Šta je namjena konkretnih prostorija?
Kakva će biti namjena studija?

p.s. Suvi pregradni zidovi pomažu samo do određene frekvencije (za basove neće raditi), ali je Boggy već negdje pisao o tome!
__________________
'
'The Funk' is the space that lives between the notes!

Tiki the Boyler is offline   Reply With Quote
Old 15-03-2007, 09:26 AM   #3
gricko
Member
 
Join Date: Sep 2004
Location: Banja Luka
Posts: 139
Default Re: studio u izgradnji

Visina prostora je 240, a manji prostor bih uredio kao gluvu sobu.

Zanima me kako uraditi pregradne zidove prema ostalim prostorijama u potkrovlju. Kad bih uradio gips+izolacija+gips pa onda na to nesto kao sto je uradio Ivan ( drvena konstrukcija pa azmafon pa...)

Ovo je samo neka moja ideja.
__________________
No sikiriki!

Last edited by gricko; 15-03-2007 at 11:58 AM.
gricko is offline   Reply With Quote
Old 15-03-2007, 12:09 PM   #4
Tiki the Boyler
Moderator
 
Tiki the Boyler's Avatar
 
Join Date: Aug 2003
Location: Banja Luka
Posts: 1,742
Default Re: studio u izgradnji

Prenisko je to druže!
Moraćeš ipak ići na kosine, jer ti je svaki kubni metar prostora dragocjen!
__________________
'
'The Funk' is the space that lives between the notes!

Tiki the Boyler is offline   Reply With Quote
Old 15-03-2007, 12:38 PM   #5
gricko
Member
 
Join Date: Sep 2004
Location: Banja Luka
Posts: 139
Default Re: studio u izgradnji

Ma da, i ja sam to skontao. Nije nikakav problem da se dobije jos dosta u visini ali sa kosinama. E sad me zanima kako da rijesim akustiku rezije. Prostor i nije tako mali pa se nadam da cu na kraju uspjeti napraviti sve kako treba. Moram priznati da sam poprilicno zbunjen od citanja po forumu jer ima dosta razlicitih pristupa i misljenja... Ali ne zurim ja. Bice valjda kako treba!
__________________
No sikiriki!
gricko is offline   Reply With Quote
Old 15-03-2007, 01:45 PM   #6
Tiki the Boyler
Moderator
 
Tiki the Boyler's Avatar
 
Join Date: Aug 2003
Location: Banja Luka
Posts: 1,742
Default Re: studio u izgradnji

Mislim da je te bi najmanji problem akustika. Bar zasad...

Imaš li ti predstavu za šta će služiti taj "studio" ?!?!
__________________
'
'The Funk' is the space that lives between the notes!

Tiki the Boyler is offline   Reply With Quote
Old 16-03-2007, 11:33 AM   #7
gricko
Member
 
Join Date: Sep 2004
Location: Banja Luka
Posts: 139
Default Re: studio u izgradnji

Quote:
Originally Posted by Tiki the Boyler View Post
Mislim da je te bi najmanji problem akustika. Bar zasad...

Ima? li ti predstavu za ?ta će slu?iti taj "studio" ?!?!
Pa naravno da imam. Prvenstveno ga pravim za realicaciju svojih ideja. Radim tekstove i muziku i hocu da to zaokruzim aranzmanom. Bice tu snimanja mnogih instrumenata. Najcesce ce se raditi o standardnoj rock postavi, znaci bend. I htio bih snimati i violine i udaraljke. Ja samo hocu da postavim prostorije onako kako ce mi biti najbolje tako da i naredna sredjivanja nebi bila problematicna.
__________________
No sikiriki!
gricko is offline   Reply With Quote
Old 17-03-2007, 09:37 AM   #8
Tiki the Boyler
Moderator
 
Tiki the Boyler's Avatar
 
Join Date: Aug 2003
Location: Banja Luka
Posts: 1,742
Default Re: studio u izgradnji

I šta si skont'o u vezi postavke prostorija?!?
__________________
'
'The Funk' is the space that lives between the notes!

Tiki the Boyler is offline   Reply With Quote
Old 19-03-2007, 01:52 PM   #9
gricko
Member
 
Join Date: Sep 2004
Location: Banja Luka
Posts: 139
Default Re: studio u izgradnji

Ono sto me zanima je hoce li mi vrata smetati po pitanju difuzora ili apsorbera na tom dijelu? Na suprotnom zidu je prozor... Ovako bih se postavio zbog zadnjeg zida i njegove obrade. Ako nije problem volio bih cuti vase sugestije i komentare...
Attached Images
 
__________________
No sikiriki!
gricko is offline   Reply With Quote
Reply


Currently Active Users Viewing This Thread: 1 (0 members and 1 guests)
 

Posting Rules
You may not post new threads
You may not post replies
You may not post attachments
You may not edit your posts

BB code is On
Smilies are On
[IMG] code is On
HTML code is On

Forum Jump

Similar Threads
Thread Thread Starter Forum Replies Last Post
Fl Studio equlibrium Audio Software 6 12-03-2009 04:48 PM
Studio "Helga" u izgradnji. Kres7787 Dizajn i konstrukcija studija 6 15-12-2008 06:36 PM
Novi studio u izgradnji akordeonista Dizajn i konstrukcija studija 11 14-11-2008 10:57 PM
MT studio AcaD Tutorijali 3 18-01-2005 09:59 AM


All times are GMT +1. The time now is 04:31 PM.


Powered by vBulletin® Version 3.8.12 by vBS
Copyright ©2000 - 2026, vBulletin Solutions Inc.
vB.Sponsors