Go Back   Rumski Forum > Studijska tehnika i instrumenti > Dizajn i konstrukcija studija

Dizajn i konstrukcija studija Diskusije i pomoc oko svih aspekata dizajna i konstrukcije kucnog/pro studija, gluve ili kontrolne sobe, tretman zidova i materijala...

Reply
 
Thread Tools Display Modes
Old 15-04-2009, 05:57 PM   #1
NLP
Moderator
 
NLP's Avatar
 
Join Date: May 2006
Location: Drugdje
Posts: 2,426
Default Prerađivanje malog studia

To je foto thread prerađivanja več opstoječeg malog studija, koji se sastoji od kontrolne sobe (3m ?irine, 4m du?ine i 2.5m visine), te nekoliko veče live sobe.
Tako je izgledao prije, projektovao ga je vlasnik koji je dipl.ing. strojarstva i prevodi na slovenački jezik knjigu Alton F. Everesta Master Handbook of Acoustics... ima i malu izdavačku kuču zvanu Multi Records.
Ipak je čocjeku zatrebala pomoč oko savjeta.
Izabran je LEDE princip kontrolke jer je soba malih dimenzija pa i proračun nije bio bogat (... pa ipak je bili skupo i ogromno vlastitog/ njegovog truda jer sam si izmi?ljajo svakojakve "zahtjeve").

Evo mjeritve koje je pravio mislim da godine 2003/ 2004 strojarski fakultet iz LJ.
Na ?alost su to nizkoresolucijske mjeritve 1/3 oktave, zato rezultati izgledaju poprilično dobro.
Attached Images
   
__________________
We are Dyslexia of Borg. Fusistance is retile. Your ass will be laminated.

Nenad Patkovic
https://www.facebook.com/NedPat34
https://www.facebook.com/aeracoustics
www.aer-acoustics.com
http://www.distopiksound.com/
https://mixanalog.com
NLP is offline   Reply With Quote
Old 15-04-2009, 06:03 PM   #2
NLP
Moderator
 
NLP's Avatar
 
Join Date: May 2006
Location: Drugdje
Posts: 2,426
Default Re: Prerađivanje malog studia

Kao što se vidi, takva soba bi bila dosta poželjna za rad jer je kubikaža malena se vrlo težko očekuje da bi bilo bolje.
Uistinu situacija je bila duplo gora...

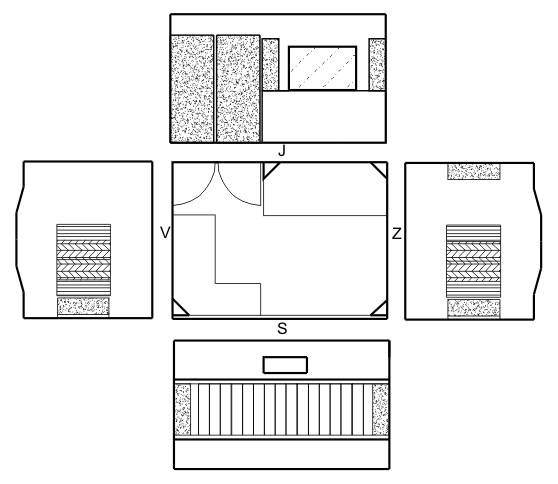
Evo shematskog prikaza kako je izgledao studijo prije.
Fotkica nemam

Na kratko maleni opis za lakšu orijentaciju:
Dolžina: 4 metre
Širina: 3 metre
Višina : 2,53 metra
Miza : 2,3 m x 1 meter , višina 1 meter
Okno 1,25m x 0,81m
Zadaj resonator: globine 15 cm, dolžine 4 metre ter širine 1 meter ( sever ) ; reže uglašene na resonančne frekvence (katere pa se ne spomnim več ).
Vrata : 2 metra x 0,8 metra
Strop in stene so tapecirane z blagom kateri ima 3 mm pene
Vse ostalo je iverica : 18 mm.
Bas kornerji so od Primacoustic_Australian bas trap
Attached Images
  
__________________
We are Dyslexia of Borg. Fusistance is retile. Your ass will be laminated.

Nenad Patkovic
https://www.facebook.com/NedPat34
https://www.facebook.com/aeracoustics
www.aer-acoustics.com
http://www.distopiksound.com/
https://mixanalog.com
NLP is offline   Reply With Quote
Old 15-04-2009, 06:06 PM   #3
NLP
Moderator
 
NLP's Avatar
 
Join Date: May 2006
Location: Drugdje
Posts: 2,426
Default Re: Prerađivanje malog studia

Nemam ba? slike svake pojedine faze ali mislim da to nije ni potrebno, ni?ta novo ne pričamo
Attached Images
     
__________________
We are Dyslexia of Borg. Fusistance is retile. Your ass will be laminated.

Nenad Patkovic
https://www.facebook.com/NedPat34
https://www.facebook.com/aeracoustics
www.aer-acoustics.com
http://www.distopiksound.com/
https://mixanalog.com

Last edited by NLP; 15-04-2009 at 06:12 PM.
NLP is offline   Reply With Quote
Old 15-04-2009, 06:24 PM   #4
NLP
Moderator
 
NLP's Avatar
 
Join Date: May 2006
Location: Drugdje
Posts: 2,426
Default Re: Prerađivanje malog studia

I absorberi i 1D difuzori imaju perforaciju oko 40% (absorberi koriste 80kg/m3 kamenu vunu presvučenu sa mikrotkaninom a neki i sa drugim tkaninama... druga priča...), 1D difuzori imaju membranu vrlo slično realtrapsovim difuzorima (ista firma koja dobavlja RTju tu plastiku Robert ih lično zna...... druga priča).
Znači da 1D difuzori difuziraju iznad 500Hz, ispod absorbiraju (mali prostor, svakva dodatna absorpcijska povr?ina je krvavo potrebna).
1D 2xdifuzora u kontrolnoj su dubina 20cm i prekata od cca. 2.8cm te prime number 23.
Difuzori u snimačkoj prostoriji su jednako 20cm dubine ali sa prime numberom 17.
2D difuzori su iz 300kg/m3 stirodura sa prime numberom 157 (Skyline princip).
Attached Images
    
__________________
We are Dyslexia of Borg. Fusistance is retile. Your ass will be laminated.

Nenad Patkovic
https://www.facebook.com/NedPat34
https://www.facebook.com/aeracoustics
www.aer-acoustics.com
http://www.distopiksound.com/
https://mixanalog.com
NLP is offline   Reply With Quote
Old 15-04-2009, 06:30 PM   #5
NLP
Moderator
 
NLP's Avatar
 
Join Date: May 2006
Location: Drugdje
Posts: 2,426
Default Re: Prerađivanje malog studia

... pa do fini?a... prvo snimački dio...
Attached Images
     
__________________
We are Dyslexia of Borg. Fusistance is retile. Your ass will be laminated.

Nenad Patkovic
https://www.facebook.com/NedPat34
https://www.facebook.com/aeracoustics
www.aer-acoustics.com
http://www.distopiksound.com/
https://mixanalog.com
NLP is offline   Reply With Quote
Old 15-04-2009, 06:32 PM   #6
NLP
Moderator
 
NLP's Avatar
 
Join Date: May 2006
Location: Drugdje
Posts: 2,426
Default Re: Prerađivanje malog studia

... u snimačkoj prostoriji, če se sa vremenom dodati još absorbera, kad malo zaštedi...
Evo kontrolne sobe... pazili smo da je radna površina zaista mala koliko se da... i rackovi su sasvim nizki!
Attached Images
     
__________________
We are Dyslexia of Borg. Fusistance is retile. Your ass will be laminated.

Nenad Patkovic
https://www.facebook.com/NedPat34
https://www.facebook.com/aeracoustics
www.aer-acoustics.com
http://www.distopiksound.com/
https://mixanalog.com

Last edited by NLP; 15-04-2009 at 06:42 PM.
NLP is offline   Reply With Quote
Old 15-04-2009, 06:41 PM   #7
NLP
Moderator
 
NLP's Avatar
 
Join Date: May 2006
Location: Drugdje
Posts: 2,426
Default Re: Prerađivanje malog studia

Dodali su se još absorberi na levi i desni prvi refleksioni površini in kutni absorberi u zadnjoj polovini (L/R u strop/zid čošku... nemam slika).
__________________
We are Dyslexia of Borg. Fusistance is retile. Your ass will be laminated.

Nenad Patkovic
https://www.facebook.com/NedPat34
https://www.facebook.com/aeracoustics
www.aer-acoustics.com
http://www.distopiksound.com/
https://mixanalog.com

Last edited by NLP; 15-04-2009 at 07:20 PM.
NLP is offline   Reply With Quote
Old 15-04-2009, 07:20 PM   #8
NLP
Moderator
 
NLP's Avatar
 
Join Date: May 2006
Location: Drugdje
Posts: 2,426
Default Re: Prerađivanje malog studia

... i eto akustičko merjenje kontrolne sobe kao ?to sam obečao!
+-10dB ili cca. max 20dB razlike između najvi?e in najni?e izmjerenog.

Prvi graf je tako kako je napravljen studio koji je viđen na ovim slikama a drugi graf kad je napunio i air gap iznad cloud absorbera.
... grafe mo?ete da tumačite sami, samo malo ne?to drugačije "popravite", negdje drugdje izbiju drugi harmonici.
Modalna 114Hz je posljedica ?irine od 3metara (344/2L=57Hz - a harmonik X 2 = 114Hz)... i tako dalje...

Robert i ja čemo malo jo? da razmislimo gdje bi se moglo jo? ?to dodati ali dolazimo do neke limite, dosta smo več nagurali u tu prostoriju pa nema vi?e prostora...
... ali ima jedno rje?enje, kad sam ga rekao Robertu umalo da me nije zadavio...
... predlo?io sam mu "all in one sobu" pa da zru?imo zid, okrenemo orijentaciju slu?anja za 90 stupnjeva po sada du?ini studija (4metra) a iza imamo ovu live sobu, znači prostorije pregrađene sa velikim kao sada stijena pomičnim gobo trapsima i promi?ljeno pozicioniranima difuzorima na samim absorpcijskim gobo trapsima...
Nije mu bilo smije?no
Attached Images
  
__________________
We are Dyslexia of Borg. Fusistance is retile. Your ass will be laminated.

Nenad Patkovic
https://www.facebook.com/NedPat34
https://www.facebook.com/aeracoustics
www.aer-acoustics.com
http://www.distopiksound.com/
https://mixanalog.com
NLP is offline   Reply With Quote
Old 15-04-2009, 07:28 PM   #9
boggy
Moderator
 
boggy's Avatar
 
Join Date: Sep 2005
Location: Beograd
Posts: 6,200
Default Re: Prerađivanje malog studia

Hvala NLP!
Stavio sam vec na sticky dok si pisao

Malo kasnije cu prokomentarisati... za sad samo da se javim i kazem hvala (jos jednom)


pozdrav

bogi
__________________
@Facebook
@Instagram
Email: boggy@myroom-acoustics.com

--"We can never see past the choices we don't understand." (Oracle, The Matrix Reloaded)
boggy is offline   Reply With Quote
Old 15-04-2009, 07:40 PM   #10
NLP
Moderator
 
NLP's Avatar
 
Join Date: May 2006
Location: Drugdje
Posts: 2,426
Default Re: Prerađivanje malog studia

Nema zašto boggy, to sam uradio da nagovorim druge da naprave mjerenja.

Zaboravio sam i da kažem da je to potpuno bez smoothinga!, kao što se može vidjeti iz grafa koji veoma varira kao u stvarnosti.

Teže mi je postavljati ovakav foto thread nego dizajnirati studijo.
Nisam ja za to.

... aha evo iz zajeban**je zadnji graf sa uključenim 1/3 smoothingom
Skoro ko "top flight" hollywood studijo...malo šale ali situacija stvarno mnogo bolje izgleda ali na žalost nije istina.

Svaki dodatni uloženi tretman više ne rezultira tako progresivno nego trebaju veoma veliki ulošci za svaki dB linearnije slike.

I još nešto: mjerenje važi od 40Hz jer je mjereno preko dynaudio BM6A klasike koja kod nešto više od 40Hz več vadi dušu.
RT60 je vrlo mali: 0.3sec do 180Hz a iznad malo više nego 0.13sec.
To je kompromis, da je frekvencijska slika koliko može linearna.

Ali kao što kažeš boggy: vlasnik/ korisnik je veoma zadovoljan, svakog dana sluša muziku koju je sproducirao u starom prostoru i čuje kakve pogreške je pravio, pokazat ču mu i ovaj test signal/ wavelet koji si mi svetovao: http://www.rumski.com/forum/showpost...7&postcount=24
odnosno: http://www.rumski.com/forum/showthre...ija#post239683
http://www.bozoel.com/component/opti...art,0/lang,en/
Attached Images
 
__________________
We are Dyslexia of Borg. Fusistance is retile. Your ass will be laminated.

Nenad Patkovic
https://www.facebook.com/NedPat34
https://www.facebook.com/aeracoustics
www.aer-acoustics.com
http://www.distopiksound.com/
https://mixanalog.com

Last edited by NLP; 15-04-2009 at 08:16 PM.
NLP is offline   Reply With Quote
Reply


Currently Active Users Viewing This Thread: 1 (0 members and 1 guests)
 

Posting Rules
You may not post new threads
You may not post replies
You may not post attachments
You may not edit your posts

BB code is On
Smilies are On
[IMG] code is On
HTML code is On

Forum Jump

Similar Threads
Thread Thread Starter Forum Replies Last Post
Pomoć oko malog kućnog studija... Pi?ta Dizajn i konstrukcija studija 28 09-02-2011 06:17 PM
Priručno sređivanje veće prostorije u svrhu snimanja bubnja Arthur Dizajn i konstrukcija studija 5 09-12-2008 09:51 PM
gradnja studia Theory Dizajn i konstrukcija studija 53 11-11-2008 10:42 PM
Pomoc u izradi mini studia A11redy Dizajn i konstrukcija studija 8 31-07-2006 01:09 PM


All times are GMT +1. The time now is 12:00 PM.


Powered by vBulletin® Version 3.8.12 by vBS
Copyright ©2000 - 2026, vBulletin Solutions Inc.
vB.Sponsors