Go Back   Rumski Forum > Studijska tehnika i instrumenti > Dizajn i konstrukcija studija

Dizajn i konstrukcija studija Diskusije i pomoc oko svih aspekata dizajna i konstrukcije kucnog/pro studija, gluve ili kontrolne sobe, tretman zidova i materijala...

Reply
 
Thread Tools Display Modes
Old 02-10-2012, 09:44 AM   #1
ggulin
Junior Member
 
Join Date: Jan 2008
Posts: 45
Default Studio izrada

Kolege glazbenici, molio bih vas za pomoć oko dizajna i konstrukcije studija.

Imam prostoriju koja je dimenzija 677 x 415 x visina koja je trenutno 265, (postoji mogućnost dizanja do 310-ak cm)
Nemam velike potrebe za snimanjem bubnja u?ivo, tako da bi recording room napravio kao vocal booth (snimanje vokala i gitara u većini slučajeva)

Čitajući po forumima i ostaloj literaturi, naletio sam na ROOM RATIO.
Uzmimo za primjer "standard" Louden 1:1.40:1.90, po kojem moja prostorija poprima sljedeće dimenzije 494 x 351 x 260 (control room) gdje bih istu morao skraćivati u ?irini sa svake strane po cca 25cm.

Zbunjuje me to ?ta sam negdje pročitao da je RATIO nebitan kod malih prostorija.

Tu vas molim za savjet.

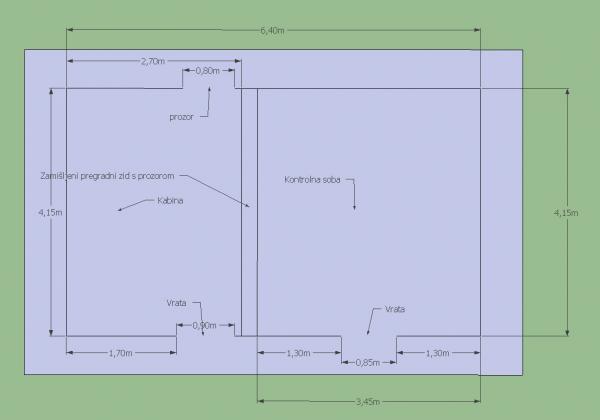
U prilogu je nacrt u SketchUp-u.

Opcija 2:

Smanjiti kontrolnu re?iju i povećati recording room.
Ni sam ne znam koliko ima smisla......
Slike u prilogu.

Unaprijed svima veliko Hvala
Attached Images
   
Attached Files
File Type: rar Studio ideja.rar (179.3 KB, 620 views)
ggulin is offline   Reply With Quote
Old 02-10-2012, 10:49 AM   #2
NLP
Moderator
 
NLP's Avatar
 
Join Date: May 2006
Location: Drugdje
Posts: 2,426
Default Re: Studio izrada

Nema smisla u tvom primjeru ?rtvovati na kubika?i, radije dobro odradi akustički tretman.
Ako mo?e da se poveča visina, to bi bilo odlično.
Oko pripuručljivih proporcija prostora pročitaj vi?e ovdje:
https://docs.google.com/file/d/0ByIw...J4QkMtekE/edit
od strane 17 dalje, je na slovenačkom jeziku, "rumski članci i tutorijali" ne rade gdje je krači i sličan tekst ali cifre če? razumjeti.
__________________
We are Dyslexia of Borg. Fusistance is retile. Your ass will be laminated.

Nenad Patkovic
https://www.facebook.com/NedPat34
https://www.facebook.com/aeracoustics
www.aer-acoustics.com
http://www.distopiksound.com/
https://mixanalog.com
NLP is offline   Reply With Quote
Old 02-10-2012, 11:25 AM   #3
ggulin
Junior Member
 
Join Date: Jan 2008
Posts: 45
Default Re: Studio izrada

Hvala. Koja je Va?a preporuka? Primjer 1 Veći control room i vocal booth (Sketchup file) ili Primjer 2 Control room + Recording room (primjer iz slike)
ggulin is offline   Reply With Quote
Old 02-10-2012, 01:07 PM   #4
boggy
Moderator
 
boggy's Avatar
 
Join Date: Sep 2005
Location: Beograd
Posts: 6,200
Default Re: Studio izrada

Quote:
Originally Posted by ggulin View Post
.....
Zbunjuje me to ?ta sam negdje pročitao da je RATIO nebitan kod malih prostorija.
.........
Realno je room ratio isforsiran od strane nekih ljudi.
Sobe se sredjuju tako sto se premere dimenzije izmeri odziv i resava problem po problem. Moze se paziti da neke dimenzije nisu 1:1 ili 1:2..., ali se cak i to moze tretirati. Smanjivati zapreminu je besmisleno, pogotovo u manjim prostorijama, gde vec nema mesta za tretman.
__________________
@Facebook
@Instagram
Email: boggy@myroom-acoustics.com

--"We can never see past the choices we don't understand." (Oracle, The Matrix Reloaded)
boggy is offline   Reply With Quote
Reply


Currently Active Users Viewing This Thread: 1 (0 members and 1 guests)
 

Posting Rules
You may not post new threads
You may not post replies
You may not post attachments
You may not edit your posts

BB code is On
Smilies are On
[IMG] code is On
HTML code is On

Forum Jump

Similar Threads
Thread Thread Starter Forum Replies Last Post
Izrada sobe u sobi Tuta_bugarin Dizajn i konstrukcija studija 9 25-07-2008 01:03 PM
Izrada Balansiranih kablova Akcija Tutorijali 2 10-05-2008 11:24 PM
Izrada Aran?mana Na Tekst MAČKON Audio Produkcija - Tehnike 4 13-03-2007 12:04 AM
Izrada BUBNJA!!! Od temelja do krova! Zid Audio Produkcija - Tehnike 33 10-07-2005 07:36 PM
Izrada mastera (montiranje pjesama)..... Goran Audio Produkcija - Tehnike 14 04-05-2004 05:03 PM


All times are GMT +1. The time now is 06:49 AM.


Powered by vBulletin® Version 3.8.12 by vBS
Copyright ©2000 - 2026, vBulletin Solutions Inc.
vB.Sponsors